Beschrijving
Welkom in dit sfeervolle chalet op vakantiepark de Friese Wadden, gelegen aan de Vogels’tún 82 in Tzummarum. Dit stijlvolle chalet biedt een oase van rust en ruimte, waar tot wel vier personen kunnen genieten van een ontspannen verblijf. Met een eigen perceel van 235m², staat dit vakantiehuis garant voor zorgeloos recreëren en aantrekkelijke verhuurrendementen. 365 dagen per jaar recreëren is mogelijk mits er geen sprake is van permanente inschrijving.
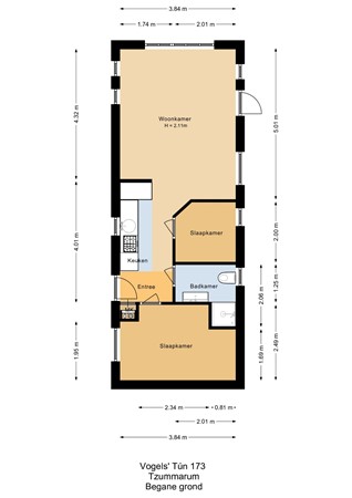
De indeling is als volgt:
Begane grond:
Entree in de woonkamer met open keuken. Hier geniet je van een goede lichtinval door de verschillende grote raampartijen. De woonkamer is voorzien van een pellet kachel en biedt ruimte voor een royale bank en eetopstelling. De open keuken is v.v. koelkast, 4-pits gasfornuis en afzuigkap. Vanuit de woonkamer/keuken heb je toegang tot twee fijne slaapkamers welke elk ruimte bieden voor 2 personen. De slaapkamers zijn compact, maar praktisch ingericht waardoor er voldoende ruimte is voor kasten. Ook de badkamer is efficiënt ingedeeld met toilet, wastafel en douche. De CV-installatie (Intergas, 2010) is netjes afgewerkt.
Tuin:
De tuin is verzorgd aangelegd en biedt volop privacy dankzij de dichte, groene hagen rondom. Direct achter de woning ligt een ruim terras met sierbestrating, gecombineerd met een strak stuk (kunst)gazon dat zorgt voor een onderhoudsvriendelijk geheel. Achterin de tuin staat een sfeervolle houten overkapping op een verhoogd vlonderterras. Hier kun je heerlijk beschut zitten – ideaal voor lange zomeravonden, een gezellige barbecue of gewoon een rustig kopje koffie in de ochtendzon. Er is voldoende ruimte voor een eettafel en loungehoek, waardoor binnen en buiten moeiteloos in elkaar overlopen.
De tuin is praktisch ingedeeld met meerdere zitplekken, een groene border en een duidelijke afscheiding naar de oprit aan de voorzijde. Dankzij de gunstige indeling en het beschutte karakter is dit een fijne plek om in alle rust van het buitenleven te genieten.
Het betreft een 4-persoons chalet die door de jaren heen goed is onderhouden. Het schilderwerk buiten is recentelijk gedaan. De woning biedt uitstekende verhuurmogelijkheden, maar is natuurlijk ook te gebruiken voor eigen recreatie. Het is toegestaan om 365 dagen te recreëren, echter permanente inschrijving is niet toegestaan. De parklasten bedragen ca. € 940,- per jaar.
Recreatiepark De Friese Wadden in Tzummarum biedt veel voorzieningen zoals het centrumgebouw met receptie, zwembad, speelterrein, sportgelegenheden, cafetaria en is gelegen op een van de mooiste stukjes van Nederland. Op het park vind je de rust die je zoekt, terwijl de omgeving volop mogelijkheden biedt. Binnen een paar minuten sta je te genieten van het prachtige uitzicht over de Waddenzee. Een boot naar één van de Waddeneilanden ligt binnen handbereik. Of geniet van de vele fietstochten die je in de omgeving kunt maken door diverse pittoreske dorpjes. De hoofdstad van Friesland, Leeuwarden, is gelegen op circa 17 km van Tzummarum. Deze stad biedt een verscheidenheid aan restaurantjes, musea en leuke winkels, in de met grachten gevulde binnenstad.
Bijzonderheden:
• Nette chalet op het vakantiepark De Friese Wadden
• Inclusief inboedel
• Instapklare recreatiewoning
• Goede verhuurmogelijkheden
• Recent schilderwerk
• 365 dagen recreëren is mogelijk (permanente inschrijving is niet toegestaan)
Kijkje nemen bij deze keurige recreatiewoning? Neem dan snel contact met ons op. We leiden je graag rond!
Deze informatie is door ons met de nodige zorgvuldigheid samengesteld, veelal aan de hand van de door verkoper aan ons ter hand gestelde gegevens en tekeningen. Onzerzijds wordt echter geen enkele aansprakelijkheid aanvaard voor enige onvolledigheid, onjuistheid of anderszins, dan wel de gevolgen daarvan. Dit geldt voor onder meer de opgegeven maten, oppervlakten, isolatie en ouderdom van technische installaties.