Beschrijving
Op vakantiepark De Friese Wadden in Tzummarum staat deze volledig opgeknapte recreatiewoning op een royaal perceel van 525 m² eigen grond. De woning, gebouwd in 2005 en met een woonoppervlakte van ca. 97,5 m², is geschikt voor 6 personen en combineert comfort, rust en recreatie op een unieke locatie vlak bij de Waddenzee. Dankzij het recente schilderwerk, de vernieuwde badkamer, de frisse inrichting en de verzorgde tuin is deze woning instapklaar – ideaal voor eigen gebruik of als aantrekkelijke investering met verhuurmogelijkheden.
De recreatiewoning mag het hele jaar door worden gebruikt voor recreatief verblijf (permanente bewoning is niet toegestaan). Daarnaast is het wel mogelijk voor tijdelijke bewoning, je kunt je inschrijven bij de gemeente Waadhoeke voor deze woning. De jaarlijkse parkbijdrage bedraagt ca. € 1.005,-, inclusief huisvuil, milieukosten en algemene voorzieningen.
De woning wordt verkocht zonder inventaris.
Begane grond
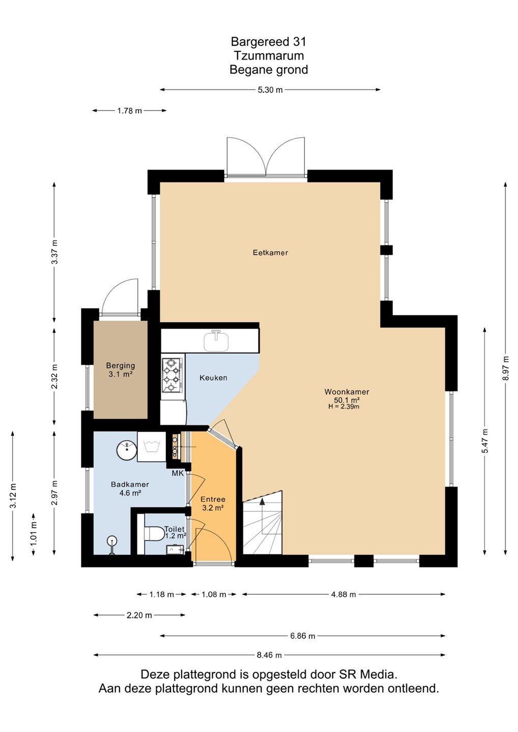
Via de entree met toilet en meterkast kom je in de lichte woonkamer, waar direct de moderne en sfeervolle uitstraling opvalt. De woonkamer en eetkamer vormen één ruim geheel met veel lichtinval dankzij de grote ramen en openslaande deuren naar de tuin. De ruimte voelt open en uitnodigend aan – perfect voor gezellige momenten met familie of vrienden.
De open keuken is praktisch ingericht en voorzien van een gaskookplaat, oven, koelkast en vaatwasser. Dankzij de ruime indeling is er voldoende plek voor een eettafel en een royale zithoek.
De badkamer bevindt zich op de begane grond en is volledig vernieuwd met een modern wastafelmeubel en een inloopdouche – een heerlijke plek om na een dag in de buitenlucht te ontspannen.
Eerste verdieping
Op de verdieping bevinden zich drie comfortabele slaapkamers, geschikt voor in totaal zes slaapplaatsen. Elke kamer heeft een eigen, warme sfeer en is voorzien van voldoende opbergruimte. De royale slaapkamer aan de achterzijde voelt bijzonder ruim aan dankzij de hoge nok, en de twee slaapkamers aan de zijkanten zijn ideaal voor logees of kinderen.
Tuin
De woning staat op een ruim perceel van 525 m² met een verzorgde, recent vernieuwde tuin rondom. Hier geniet je volop van rust, privacy en zon. Op het ruime terras kun je heerlijk ontbijten in de ochtendzon of ontspannen met uitzicht op het groen.
De tuin nodigt uit tot buitenleven, of het nu gaat om barbecueën, lezen in de zon of gewoon genieten van de frisse Waddenlucht.
Daarnaast is er een losse houten berging bijgebouwd, ideaal voor het opbergen van tuingereedschap of fietsen. Aan de woning zelf bevindt zich nog een extra berging, waar ook de cv-installatie is geplaatst – praktisch en goed bereikbaar.
Vakantiepark De Friese Wadden
Het park biedt diverse faciliteiten zoals een zwembad, speeltuin, sportveld, café en receptie. Vanuit de woning ben je binnen enkele minuten bij de Waddenzee, waar je kunt wandelen, fietsen of wadlopen. De omgeving van Tzummarum is rijk aan natuur en rust, met karakteristieke Friese dorpen en de stad Leeuwarden op slechts 20 minuten rijden. Ook de veerboot naar Terschelling of Vlieland is eenvoudig bereikbaar.
Pluspunten
• Volledig opgeknapt
• Woonoppervlakte ca. 97,5 m²
• Perceeloppervlak 525 m²
• Bouwjaar 2005 – energielabel C
• Geschikt voor 6 personen
• 365 dagen per jaar recreatief gebruik toegestaan
Een woning als deze zie, voel en beleef je pas echt bij een bezichtiging.
Wil jij deze instapklare recreatiewoning van binnen bekijken? Neem dan contact met ons op – wij leiden je graag rond!
Deze informatie is door ons met de nodige zorgvuldigheid samengesteld, veelal aan de hand van de door verkoper aan ons ter hand gestelde gegevens en tekeningen. Onzerzijds wordt echter geen enkele aansprakelijkheid aanvaard voor enige onvolledigheid, onjuistheid of anderszins, dan wel de gevolgen daarvan. Dit geldt voor onder meer de opgegeven maten, oppervlakten, isolatie en ouderdom van technische installaties.