Beschrijving
Aan het sfeervolle Zuideinde in Sint Jacobiparochie vind je deze verrassend ruime vrijstaande woning uit 1927. Achter de klassieke voorgevel schuilt een uitstekend onderhouden en verrassend royale gezinswoning met vijf slaapkamers, een grote garage en een heerlijk tuinhuis. Zodra de deuren opengaan, word je verrast door de ruimte, het licht en de verzorgde afwerking.
Met een woonoppervlakte van ca. 153 m² en een energiebewuste inrichting biedt deze woning een perfecte balans tussen karakter en comfort.
Begane grond
De entree leidt naar een ruime hal met trapopgang en toegang tot de lichte woonkamer. Dankzij de grote ramen en de fraaie houten vloer ademt deze ruimte een warme, uitnodigende sfeer. De originele details, zoals de balkenplafonds en de 4 grote ramen aan de voorzijde, geven het geheel karakter zonder dat het aan modern wooncomfort ontbreekt.
Aansluitend vind je de ruime woonkeuken, een gezellige plek waar koken en samenzijn centraal staan. De keuken is uitgevoerd in een lichte kleurstelling en biedt volop werk- en bergruimte. Vanuit hier heb je zicht op de tuin en toegang tot de praktische bijkeuken met witgoedaansluitingen en extra kastruimte. Ook bevindt zich op de begane grond de badkamer, voorzien van een ligbad, douche, wastafel en toilet – ideaal voor dagelijks comfort.
De begane grond biedt voldoende leefruimte voor een gezin, met een logische indeling en mogelijkheden om de ruimtes naar eigen wens aan te passen.
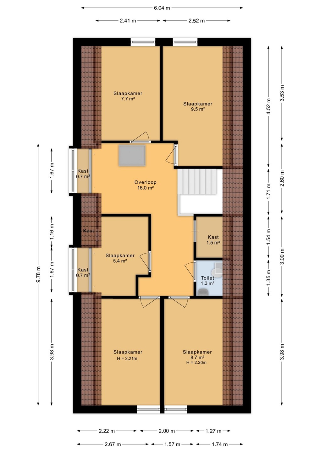
Eerste verdieping
Op de eerste verdieping zijn maar liefst vijf slaapkamers aanwezig – variërend in grootte, met elk hun eigen charme. De twee grootste kamers bevinden zich aan de achterzijde en profiteren van veel lichtinval. De overige kamers zijn ideaal als kinder- of werkkamer. Op de overloop bevindt zich bovendien een tweede toilet, wat de woning extra praktisch maakt voor gezinnen.
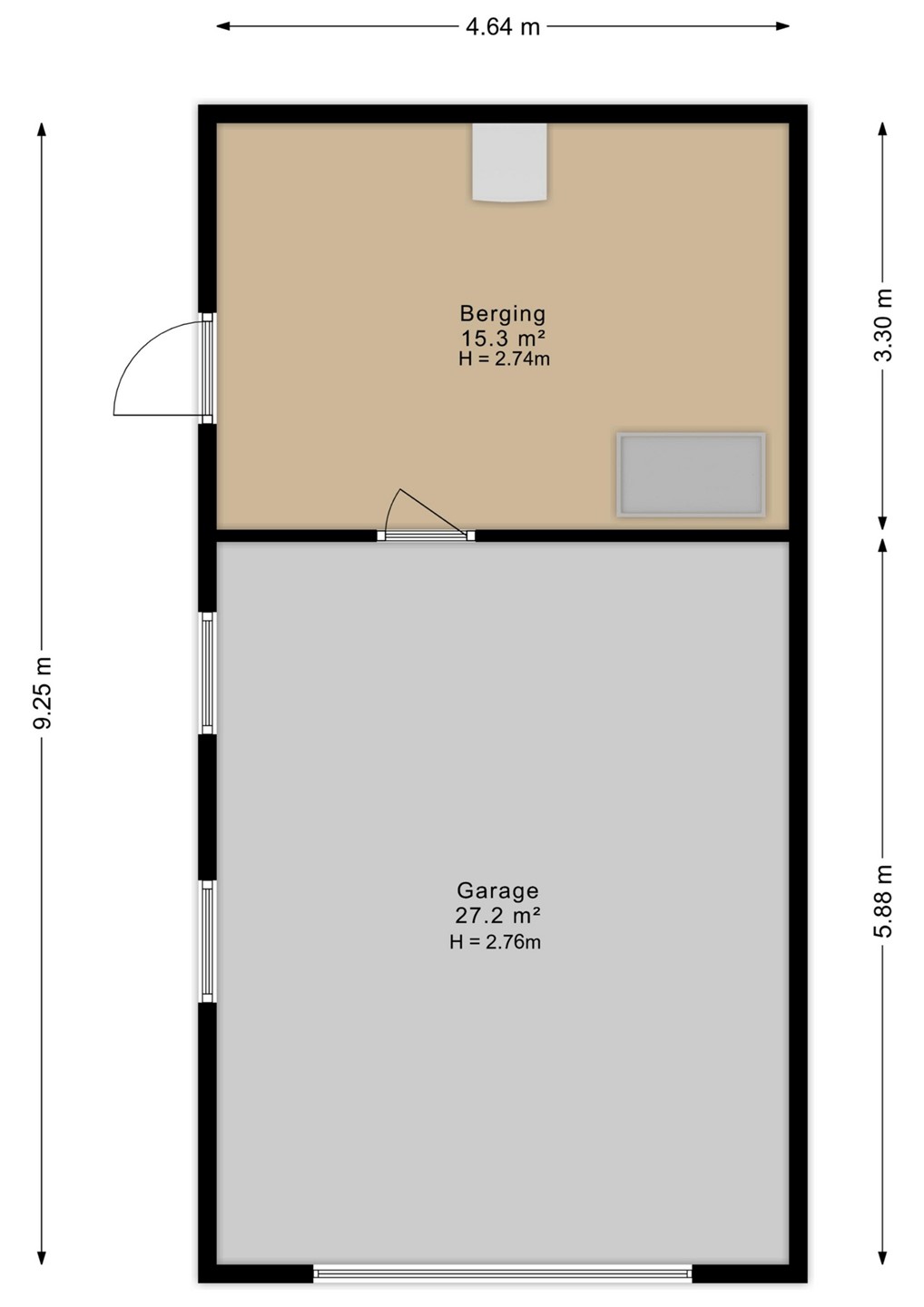
Tuin, garage en tuinhuis
De achtertuin is verzorgd, besloten en sfeervol ingericht – een fijne plek om in alle rust van het buitenleven te genieten. Hier vind je verschillende zitplekken, perfect voor een zomerse barbecue of een rustig moment met een kop koffie.
Het tuinhuis verdient daarbij echt extra aandacht: deze is volledig afgewerkt in hout, voorzien van glazen schuifdeuren en straalt een warme, uitnodigende sfeer uit. Dankzij de overkapping en de beschutte ligging kun je hier het hele jaar door ontspannen. Binnen voelt het bijna als je eigen gezellige kroeg of loungehoek – een ideale plek om samen met vrienden of familie te borrelen, voetbal te kijken of gewoon te genieten van een lange avond.
Daarnaast beschikt het perceel over een ruime garage met aangrenzende berging. De garage biedt volop ruimte voor een auto, fietsen of een werkbank voor de klusliefhebber, en de extra verdieping met dakkapel maakt het zelfs mogelijk om hier nog een werkkamer of hobbyruimte te creëren. Zo combineert deze woning praktisch gemak met heerlijk ontspannen buitenleven.
Duurzaamheid en onderhoud
De woning is goed onderhouden en toekomstbestendig uitgerust. Met 12 zonnepanelen in eigendom profiteer je van een lagere energierekening, terwijl de HR++ beglazing en extra isolatie bijdragen aan een comfortabel binnenklimaat. De houten kozijnen verkeren in goede staat en zijn in 2023 nog geschilderd, waardoor de woning een frisse en verzorgde uitstraling heeft. Verwarming en warm water worden verzorgd door een Remeha cv-ketel uit 2019, eveneens in eigendom. Alles wijst erop dat deze woning met zorg is bewoond en uitstekend is onderhouden – klaar voor de volgende eigenaar die de combinatie van charme, ruimte en duurzaamheid weet te waarderen.
Pluspunten
• Bouwjaar 1927
• Woonoppervlakte ca. 153 m²
• 5 slaapkamers
• Grote garage met potentie voor extra kamer
• Gezellig tuinhuisje
• 12 zonnepanelen (eigendom)
• Cv-ketel Remeha uit 2019
• HR++ beglazing en goede isolatie
• Recent schilderwerk (2023)
• Rustige ligging in karakteristieke straat
• Volop privacy en verrassend veel ruimte
Wonen in Sint Jacobiparochie
Sint Jacobiparochie ligt op het Bildt – een unieke streek met uitgestrekte vergezichten, historische dijken en een hechte dorpsgemeenschap. In het dorp vind je voorzieningen zoals winkels, een basisschool, sportfaciliteiten en een actief verenigingsleven. Leeuwarden en Franeker zijn binnen 20 minuten bereikbaar, waardoor je geniet van de rust van het platteland met de stad altijd dichtbij.
Zuideinde 24 in Sint Jacobiparochie is een woning die je echt van binnen moet ervaren. Achter de bescheiden gevel schuilt een warm, goed onderhouden en energiezuinig (t)huis vol verrassingen – ideaal voor wie ruimte, karakter en comfort zoekt in één pakket.
Deze informatie is door ons met de nodige zorgvuldigheid samengesteld, veelal aan de hand van de door verkoper aan ons ter hand gestelde gegevens en tekeningen. Onzerzijds wordt echter geen enkele aansprakelijkheid aanvaard voor enige onvolledigheid, onjuistheid of anderszins, dan wel de gevolgen daarvan. Dit geldt voor onder meer de opgegeven maten, oppervlakten, isolatie en ouderdom van technische installaties.