Beschrijving
Op een rustige en mooie locatie aan de rand van de Oudebildtdijk en Sint-Jacobiparochie staat deze verrassend ruime vrijstaande woning met eigen oprit, grote garage, meerdere bergingen en vrij uitzicht over de weilanden. De woning is in de afgelopen jaren op belangrijke punten gemoderniseerd, uitstekend onderhouden en voorzien van energiebesparende maatregelen zoals 12 zonnepanelen, kunststof kozijnen en extra isolatie.
Met een royale woonkamer, drie grote slaapkamers, mogelijkheden voor gelijkvloers wonen én het prachtige weidse uitzicht aan de voorzijde, is dit een uniek (t)huis voor wie ruimte, rust en comfort zoekt.
Begane grond
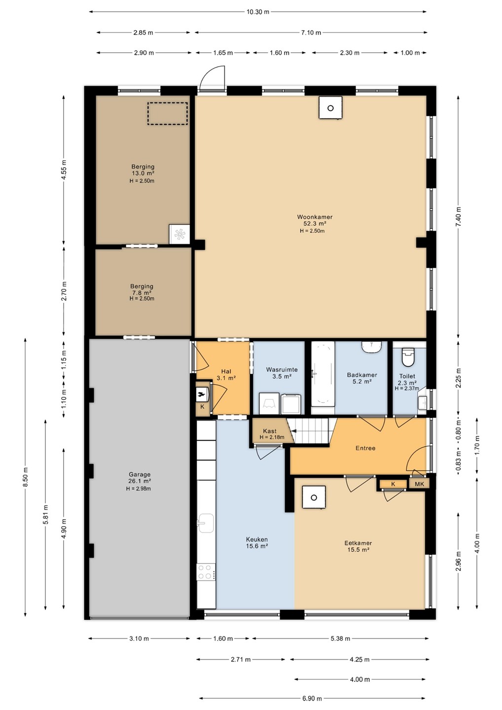
Je betreedt de woning via de ruime entree met garderobe, meterkast (vernieuwde groepenkast uit 2022) en modern toilet. Vanuit hier zijn zowel de keuken, de badkamer als de woonkamer bereikbaar.
De royale woonkamer van ca. 52 m² vormt het hart van de woning en biedt door de grote raampartijen een prachtige hoeveelheid lichtinval gedurende de hele dag. De ruimte is fijn van formaat en leent zich uitstekend voor een grote zithoek. Dankzij de vloerverwarming is het er in elk seizoen aangenaam warm en comfortabel. De woonkamer heeft een open, uitnodigende sfeer en biedt volop mogelijkheden om de ruimte geheel naar eigen woonstijl in te richten. Of je nu houdt van modern, landelijk of gezellig en warm — deze leefruimte kan alle kanten op.
De moderne keuken uit 2022 is ruim opgezet en praktisch ingericht, met volop werkruimte en directe verbinding met de eetkamer. Ook hier kijk je prachtig weg richting de weilanden. Het is een fijne, lichte ruimte waar koken en samen eten centraal staan.
Op de begane grond bevinden zich een badkamer met een ligbad en wastafel, en een separaat toilet. Daarnaast is er een praktische wasruimte en een extra hal die de keuken, garage en woonkamer met elkaar verbindt.
Een fijne bijkomstigheid is dat de aanwezige berging kan worden omgebouwd tot slaapkamer. In combinatie met de badkamer op de begane grond ontstaat hiermee de mogelijkheid om de woning levensloopbestendig te maken.
Bergingen & garage
Aan de linkerzijde van de woning vind je een grote inpandige garage (ca. 26 m²) én twee bergingen (ca. 13 m² en 8 m²). Deze bieden volop opbergmogelijkheden maar vormen ook een uitstekende basis voor wie gelijkvloers wil wonen: een van de bergingen is namelijk goed te verbouwen tot een slaapkamer. De badkamer beneden maakt een levensloopbestendige woonvariant goed mogelijk.
Eerste verdieping
De eerste verdieping is verrassend ruim en zeer functioneel ingedeeld. Hier bevinden zich drie royale slaapkamers, ieder met een prettig vloeroppervlak en veel lichtinval. De kamers variëren van groot tot zeer ruim, waardoor ze uitstekend inzetbaar zijn als slaapkamer, kinderkamer, logeerkamer of bijvoorbeeld een luxe werkkamer. Daarnaast is er een praktische inloopkast aanwezig, ideaal voor kleding, schoenen of extra opbergruimte.
De moderne badkamer (2023) is uitgerust met een douche, wastafel en tweede toilet en past helemaal bij het comfortniveau van deze verdieping. Dankzij de dakkapellen voelen de ruimtes licht en comfortabel aan.
Een fijne extra: de verdieping beschikt over diverse vaste kasten én biedt via een vlizotrap toegang tot een vliering van 13 m². Daarnaast beschikt de woning ook nog over een grote zolder van ca. 48 m² — perfect voor het opbergen van seizoensspullen of andere items die je graag uit het zicht wilt bewaren.
Buitenruimte & ligging
Het perceel van ca. 410 m² biedt zowel voor- als achtertuin. Aan de voorzijde geniet je van volledig vrij uitzicht over de velden, waardoor je er een erg ruimtelijk gevoel bij hebt.
Aan de achterzijde ligt een besloten tuin met ruimte voor zon, zitplekken of speelruimte. De oprit naast de woning biedt ruime parkeergelegenheid voor meerdere auto’s.
De ligging is heerlijk rustig aan een weinig bereden straat, terwijl voorzieningen van St.-Jacob en het dorp Westhoek gemakkelijk bereikbaar zijn en de Waddenzee ligt op enkele minuten afstand.
De woning is in de afgelopen jaren goed aangepakt en verbeterd:
• 12 zonnepanelen
• Nieuwe elektra + groepenkast (2022)
• 17 cm extra glaswol-isolatie aan de binnenzijde van de wanden
• Volledig voorzien van kunststof kozijnen (2022) – uitgezonderd de twee dakkapellen (hout)
• Vloerverwarming in de woonkamer
• Moderne keuken (2022)
• Badkamer op verdieping (2023)
Pluspunten op een rij
• Vrijstaande woning met grote leefruimtes
• Fantastisch vrij uitzicht aan de voorzijde
• Grote woonkamer met vloerverwarming
• Keuken en badkamer verdieping vernieuwd (2022)
• 3 ruime slaapkamers
• Mogelijkheid tot levensloopbestendig wonen
• Grote garage
• Rustige woonomgeving vlak bij de Waddenzee
Deze informatie is door ons met de nodige zorgvuldigheid samengesteld, veelal aan de hand van de door verkoper aan ons ter hand gestelde gegevens en tekeningen. Onzerzijds wordt echter geen enkele aansprakelijkheid aanvaard voor enige onvolledigheid, onjuistheid of anderszins, dan wel de gevolgen daarvan. Dit geldt voor onder meer de opgegeven maten, oppervlakten, isolatie en ouderdom van technische installaties.