Beschrijving
Aan de rustige Steven Huygenstraat in Sint-Annaparochie staat deze ruime en goed onderhouden twee-onder-één-kapwoning uit 1992, met een woonoppervlakte van ca. 117 m² en een perceel van 358 m². Dankzij het energielabel A, de vijf slaapkamers en de praktische indeling is dit een ideale gezinswoning waar comfort, ruimte en duurzaamheid samenkomen.
Een bijzonder pluspunt is de aan de voorzijde gelegen werkruimte met een eigen entree. Deze ruimte biedt volop mogelijkheden: ideaal voor wie een onderneming aan huis wil starten – denk aan een kapsalon, nagelstudio of kantoor – of eenvoudig te gebruiken als extra slaapkamer op de begane grond. In combinatie met de aangrenzende berging (die tot badkamer kan worden omgebouwd) kun je hier zelfs een levensloopbestendige woning creëren.
Begane grond
De entree met toilet en trapopgang geeft toegang tot de ruime woonkamer van ca. 35 m². Dankzij de grote raampartijen aan de voor- en achterzijde geniet je hier van veel daglicht en een prettige sfeer. Er is meer dan genoeg ruimte voor zowel een gezellige zithoek als een eettafel met uitzicht op de tuin.
De half-open keuken ligt aan de achterzijde en is praktisch ingericht met diverse inbouwapparatuur. Via de keuken heb je toegang tot de bijkeuken, waar plaats is voor witgoedopstelling en extra voorraad.
Achter de bijkeuken bevinden zich de werkruimte en een berging. De werkkamer is circa 10 m² groot en beschikt over een eigen deur naar buiten, waardoor bezoekers rechtstreeks binnen kunnen komen zonder door de woning te hoeven. De berging van ca. 6 m² is eveneens via binnen te bereiken en kan eenvoudig worden omgevormd tot badkamer of hobbyruimte.
Eerste verdieping
Op de eerste verdieping bevinden zich drie goed bemeten slaapkamers van ca. 7,5 m² tot 8,6 m². Alle kamers zijn voorzien van grote ramen, waardoor ze licht en prettig aanvoelen. De badkamer is voorzien van een douche, wastafel en tweede toilet.
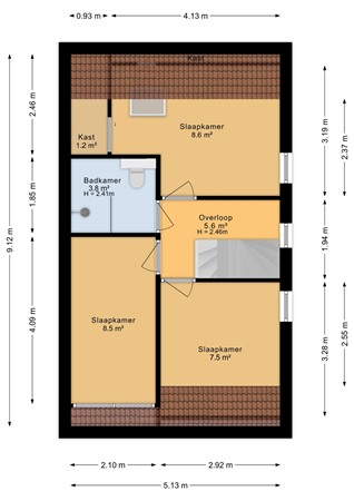
Tweede verdieping
Via de vaste trap bereik je de tweede verdieping. Hier vind je nog een slaapkamer en een praktische overloop met bergruimte. De verdieping is keurig afgewerkt en dankzij het dakraam aangenaam licht – perfect als tienerkamer, logeerkamer of werkkamer.
Tuin, oprit en garage
De woning beschikt over een ruime oprit met parkeergelegenheid voor meerdere auto’s en een vrijstaande houten garage voor de fietsen en de tuinspullen. De achtertuin ligt gunstig en biedt volop privacy. Er is ruimte voor een terras, speelplek en groen; ideaal voor gezinnen met kinderen of liefhebbers van buitenleven. De tuin is onderhoudsvriendelijk aangelegd en biedt mogelijkheden om naar eigen smaak verder in te richten.
Duurzaamheid en onderhoud
De woning is uitstekend onderhouden en heeft een energielabel A. De goede isolatie en dubbele beglazing zorgen voor een laag energieverbruik en comfortabel binnenklimaat. De cv-installatie is modern en efficiënt, en de woning is grotendeels voorzien van onderhoudsarme materialen zoals kunststof kozijnen.
Pluspunten
• Energielabel A
• Vijf slaapkamers
• Praktische indeling
• Werkruimte met eigen entree – ideaal voor kantoor of salon aan huis
• Mogelijkheid om levensloopbestendig te wonen
• Vrijstaande stenen garage
• Parkeerruimte op eigen terrein
• Rustige ligging in kindvriendelijke woonwijk
Ligging
Sint-Annaparochie is een levendig dorp met alle voorzieningen binnen handbereik: supermarkten, basisscholen, sportaccommodaties en gezellige horeca. De ligging is gunstig ten opzichte van Leeuwarden en Franeker, die beide binnen circa 20 minuten bereikbaar zijn. De omgeving biedt veel rust, ruimte en een sterke dorpsgemeenschap – ideaal voor gezinnen die comfortabel en duurzaam willen wonen met ruimte voor werk of hobby aan huis.
Goed om te weten
De overdrachtsdatum van deze woning staat gepland voor medio juni 2026.
Deze informatie is door ons met de nodige zorgvuldigheid samengesteld, veelal aan de hand van de door verkoper aan ons ter hand gestelde gegevens en tekeningen. Onzerzijds wordt echter geen enkele aansprakelijkheid aanvaard voor enige onvolledigheid, onjuistheid of anderszins, dan wel de gevolgen daarvan. Dit geldt voor onder meer de opgegeven maten, oppervlakten, isolatie en ouderdom van technische installaties.