Beschrijving
Wonen aan de dijk met een weids uitzicht over het Friese landschap. Aan de karakteristieke Oudebildtdijk staat deze verrassend complete dijkwoning met garage, souterrain, zonnige tuin en een vrij uitzicht over de uitgestrekte landerijen. Hier woon je letterlijk op een van de mooiste plekken van de Waadhoeke: aan de voorzijde de historische dijk en aan de achterzijde kilometers ver kijken over de akkers. De woning heeft een praktische indeling met meerdere niveaus, een ruime garage met zolder en een fijne tuin met terras en overkapping. Dankzij de ligging op de dijk geniet je hier dagelijks van rust, ruimte en een bijzonder panorama dat met de seizoenen mee verandert. Bovendien beschikt de woning over energielabel A, wat zorgt voor een comfortabel en energiezuinig woonklimaat. Wordt dit jouw nieuwe [t]huis?
De indeling is als volgt:
Begane grond (dijkniveau)
Via de entree kom je in de hal met trapopgang, meterkast en toilet. Vanuit hier stap je de woonkamer binnen. De woonkamer voelt licht en gezellig aan en biedt een prettig uitzicht richting de dijk en het omliggende landschap. Er is voldoende ruimte voor een royale zithoek en een eettafel. Aansluitend ligt de woonkeuken van welke ongeveer drie jaar geleden is vernieuwd. In een moderne hoekopstelling met diverse inbouwapparatuur en mooi uitzicht over de landerijen! Hier is voldoende werkruimte en plaats voor een eethoek. Via openslaande deuren bereik je het zonneterras, een heerlijke plek om op zonnige dagen buiten te genieten. Vanuit de keuken is een aparte ruimte beschikbaar welke gebruikt kan worden als slaap-, hobby- of [thuis]werkruimte.
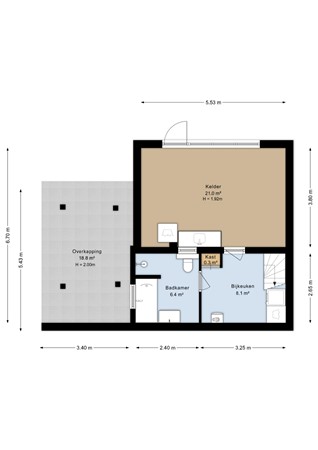
Souterrain
Vanuit de hal is er toegang naar het souterrain. Hier bevindt zich een bijkeuken met witgoedopstelling met toegang tot de badkamer en berging. De ruimte badkamer welke is uitgerust met een ligbad, douche, toilet en wastafel én comfortabele vloerverwarming. De berging geeft direct toegang naar de achtertuin. Deze ruimte is ideaal als provisieruimte, hobbyruimte of extra opslag.
Eerste verdieping
Op de eerste verdieping zijn een overloop, vaste kast en drie slaapkamers aanwezig van circa 9 m², 9 m² en 6,9 m². Daarnaast is er op deze verdieping een separate ruimte met wastafel, wat bijvoorbeeld handig is als extra was- of verzorgingsruimte.
Vliering
Via een vlizotrap bereik je de vliering. Deze ruimte biedt extra bergruimte en mogelijkheden voor opslag.
Buitenruimte
De achtertuin ligt beschut en biedt een fijne plek om buiten te zitten. Hier ervaar je echt de rust en ruimte waar het Bildt om bekend staat. In de tuin staat een ruime vrijstaande garage van circa 37 m² met een eigen zolder. De garage is ideaal voor hobby, opslag of werkruimte en is voorzien van krachtstroom. Hier is bovendien vloerverwarming en water aanwezig.
Goed om te weten:
+ Energielabel A
+ Airco aanwezig
+ 8 zonnepanelen
+ Keralit gevelbekleding (onderhoudsarm)
+ Recente keuken (2023)
+ Meterkast vernieuwd met extra groepen (gereed voor elektrisch koken)
+ Recent schilderwerk uitgevoerd in 2025
Omgeving
De woning ligt aan de historische Oudebildtdijk, een van de langste straten van Nederland. Dit gebied staat bekend om zijn karakteristieke dijkwoningen, open landschap en prachtige vergezichten richting de Waddenzee en het Friese land. Tegelijkertijd liggen voorzieningen van onder andere St.-Annaparochie, St. Jacobiparochie en Harlingen op korte afstand.
Ben je op zoek naar een dijkwoning met karakter, ruimte en een uitzicht waar je elke dag opnieuw van geniet? Dan is Oudebildtdijk 416 absoluut een bezichtiging waard.
Deze informatie is door ons met de nodige zorgvuldigheid samengesteld, veelal aan de hand van de door verkoper aan ons ter hand gestelde gegevens en tekeningen. Onzerzijds wordt echter geen enkele aansprakelijkheid aanvaard voor enige onvolledigheid, onjuistheid of anderszins, dan wel de gevolgen daarvan. Dit geldt voor onder meer de opgegeven maten, oppervlakten, isolatie en ouderdom van technische installaties.