Beschrijving
Nette tussenwoning met moderne afwerking, kunststof kozijnen en een zonnige tuin - ideaal voor (groeiende) gezinnen of starters! Op een rustige en kindvriendelijke locatie in Minnertsga staat deze keurig onderhouden tussenwoning met fijne leefruimtes, moderne keuken en badkamer, en drie slaapkamers. De woning is instapklaar, goed onderhouden en voorzien van kunststof kozijnen – de houten buitendeuren zijn in 2024 nog geschilderd. Dankzij de zuidwestelijke ligging van de tuin geniet je de hele middag van de zon. Binnen tref je een sfeervolle woonkamer, een eigentijdse keuken met vloerverwarming en een heerlijke badkamer met ligbad én inloopdouche. Bovendien beschikt de woning over een Big Green waterontharder en zijn er volop mogelijkheden om de zolder en bergruimte praktisch in te delen. Wordt dit jouw nieuwe [t]huis?
De indeling is als volgt:
Begane grond
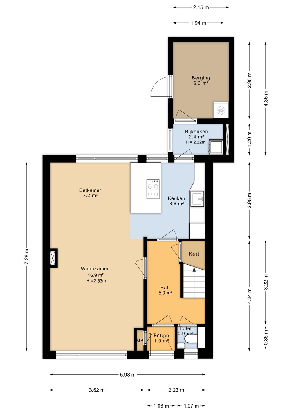
Je komt via het tochtportaal binnen in de hal waar ook direct het toilet zich bevindt en de trap naar boven. Via de hal heb je toegang tot de woonkamer en tot de keuken die aan de achterzijde van de woning ligt. De lichte woonkamer heeft een prettige doorzonindeling en biedt ruimte voor een gezellige zit- en eethoek. De halfopen keuken (2022) is een echte blikvanger, voorzien van moderne fronten, een kookeiland met bar, diverse inbouwapparatuur en vloerverwarming. Vanuit de keuken bereik je de bijkeuken met witgoedaansluitingen. Aansluitend bevindt zich nog een praktische stenen berging met toegang tot de achtertuin.
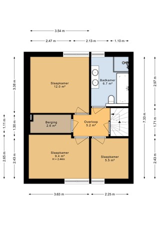
Eerste verdieping
Overloop met toegang tot drie slaapkamers van verschillende afmetingen, waarvan twee ruime slaapkamers perfect zijn voor een tweepersoonsbed of kinderkamer. De berging op deze verdieping kan eventueel worden omgebouwd tot extra kastruimte of inloopkast voor de naastgelegen slaapkamers. De moderne en ruime badkamer (ca. 3 jaar oud) is stijlvol afgewerkt met een wastafelmeubel, inloopdouche, ligbad en tweede toilet – ook hier is vloerverwarming aanwezig.
Tweede verdieping
Via een vaste trap bereik je de ruime zolder. Deze ruimte (ca. 13,6 m²) is momenteel in gebruik als bergzolder, maar hier kan eenvoudig een vierde slaapkamer gerealiseerd worden met dakraam of dakkapel. Of worden ingericht als hobbyruimte of thuiskantoor. Hier bevindt zich teven de CV installatie (Intergas, bouwjaar 2022).
Buiten
De tuin is onderhoudsarm aangelegd met een terras, gazon en houten berging achterin de tuin. Dankzij de zuidwest-ligging kun je hier heerlijk genieten van de zon en privacy. De voortuin zorgt voor een prettige afstand tot de straat en geeft de woning een nette, uitnodigende uitstraling.
Locatie:
Minnertsga is een actief dorp met een basisschool, supermarkt, sportvoorzieningen en goede uitvalswegen naar Franeker en Leeuwarden. Een fijne woonomgeving voor jong en oud!
Pluspunten van de woning:
• Nette, instapklare tussenwoning
• Energielabel B
• Grotendeels kunststof kozijnen (onderhoudsarm)
• Moderne keuken met kookeiland en vloerverwarming
• Luxe badkamer met vloerverwarming
• Big Green waterontharder
• Drie slaapkamers, mogelijkheid voor extra kamer op zolder
• Zonnige achtertuin met twee bergingen
• Rustige straat met speeltuin en voorzieningen in de buurt
Kortom: een ideale gezinswoning waar je zó in kunt trekken! Plan snel een bezichtiging via Miedema Makelaars en ontdek zelf de fijne sfeer van Vikarijbuorren 37 in Minnertsga.
Deze informatie is door ons met de nodige zorgvuldigheid samengesteld, veelal aan de hand van de door verkoper aan ons ter hand gestelde gegevens en tekeningen. Onzerzijds wordt echter geen enkele aansprakelijkheid aanvaard voor enige onvolledigheid, onjuistheid of anderszins, dan wel de gevolgen daarvan. Dit geldt voor onder meer de opgegeven maten, oppervlakten, isolatie en ouderdom van technische installaties.