Beschrijving
Wonen met karakter, ruimte én volop mogelijkheden – dat is precies wat deze vrijstaande woning uit 1902 te bieden heeft. De woning is in de loop der jaren verbouwd en gerenoveerd, waarbij de charme van toen mooi behouden is gebleven, gecombineerd met het comfort van nu. Wat deze plek écht bijzonder maakt, is de royale vrijstaande garage met eigen voorzieningen én een volledig verbouwde verdieping met bar. Ideaal voor hobbyisten, thuiswerkers of bijvoorbeeld een praktijkruimte zoals een yogastudio. Tel daar de levensloopbestendige indeling van de woning bij op en je hebt hier een (t)huis met verrassend veel mogelijkheden.
De ruime oprit biedt plek voor meerdere auto’s en in de tuin vind je een heerlijk terras met overkapping waar je beschut kunt genieten van het buitenleven.
De indeling is als volgt:
Begane grond
Via de entree kom je in de hal met toegang tot de verschillende vertrekken. De sfeervolle woonkamer is een fijne leefruimte met veel lichtinval en beschikt over karakteristieke en suitedeuren. Ideaal om de ruimte op te delen in een zit- en eetgedeelte, of juist alles open te houden voor een ruimtelijk gevoel. De aanwezige vloerverwarming zorgt daarbij voor een aangenaam en comfortabel woonklimaat, het hele jaar door.
Aansluitend bevindt zich de ruime woonkeuken, die dankzij de erker een prettige lichtinval en extra ruimte biedt. De keuken is uitgevoerd in een rechte opstelling en heeft een moderne, rustige uitstraling. De lichte fronten in combinatie met het donkere werkblad zorgen voor een mooi contrast en geven het geheel een tijdloze look. De keuken is daarnaast voorzien van diverse inbouwapparatuur, waaronder een fornuis met oven, afzuigkap, vaatwasser en voldoende kastruimte voor al je keukengerei. Door de opstelling en de ruimte rondom is er volop plek voor een royale eettafel, waardoor dit echt het hart van de woning vormt – een plek waar koken, eten en gezellig samenzijn samenkomen.
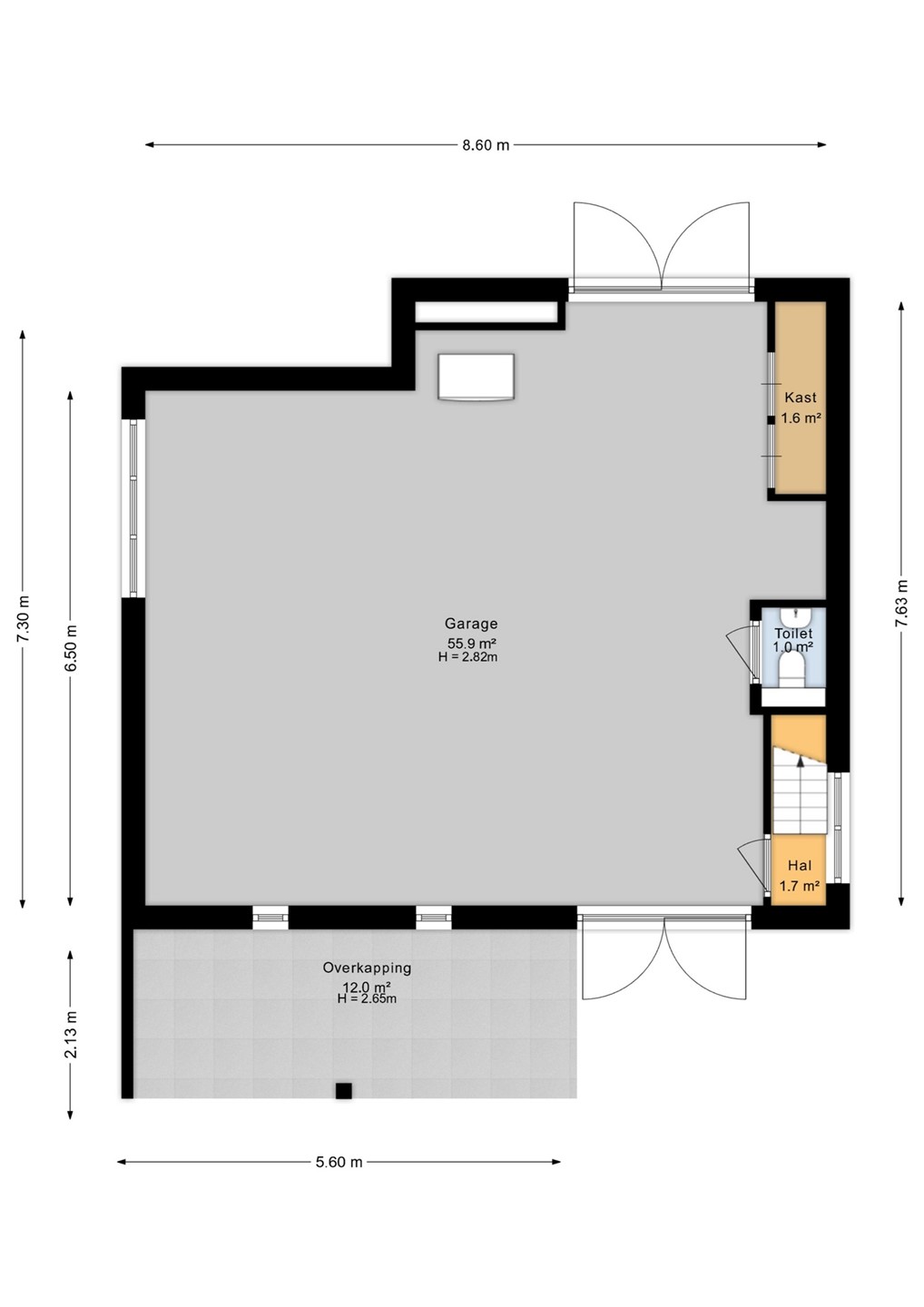
De woning is levensloopbestendig ingericht met een slaapkamer en badkamer op de begane grond. De slaapkamer is van goed formaat en biedt voldoende ruimte voor een tweepersoonsbed en kastruimte. De badkamer is modern uitgevoerd en voorzien van een inloopdouche en wastafelmeubel. Daarnaast is er een praktische bijkeuken met witgoedaansluitingen, opstelling voor de waterontharder en extra bergruimte, een separaat toilet en direct toegang naar buiten.
Eerste verdieping
Op de verdieping bevinden zich drie slaapkamers en een overloop. De kamers variëren in grootte en zijn geschikt als slaap-, werk- of hobbyruimte. Door de schuine kap en indeling hebben de kamers een speels karakter. Eén van de slaapkamers is voorzien van praktische vaste kasten, wat zorgt voor veel handige opbergruimte en een nette uitstraling. Een andere slaapkamer biedt directe toegang tot het platte da
Bijgebouw / garage
De vrijstaande garage is een absoluut pluspunt van deze woning! Met openslaande deuren aan zowel de voor- als achterzijde is deze ruimte praktisch en goed toegankelijk. De garage is voorzien van een eigen CV-installatie, toiletruimte en zelfs een infrarood sauna met zoutvernevelaar. De verdieping boven de garage is volledig verbouwd en ingericht met een gezellige bar. Een unieke ruimte die zich perfect leent als hobbyruimte, mancave, atelier of praktijkruimte. Hier kun je echt alle kanten mee op.
Buiten
De woning beschikt over een ruime oprit met parkeergelegenheid voor meerdere auto’s. De achtertuin is onderhoudsvriendelijk aangelegd en biedt volop ruimte om verschillende zitplekken te creëren. Dankzij de ligging op het noordoosten kun je hier in de ochtend en het begin van de middag heerlijk van de zon genieten.
Aansluitend aan de woning bevindt zich een terras met overkapping, een fijne plek om beschut buiten te zitten. Daarnaast is er nog een vrijstaande berging/tuinhuis aanwezig, ideaal voor het opbergen van tuinspullen of als extra hobbyruimte.
Ligging
Minnertsga is een gemoedelijk dorp met een actief verenigingsleven en diverse voorzieningen zoals een supermarkt, basisschool en sportfaciliteiten. Daarnaast ben je binnen korte tijd in Franeker, Harlingen of Leeuwarden. Hier woon je rustig, maar toch centraal.
Goed om te weten:
+ Vrijstaande woning uit 1902, verbouwd en gerenoveerd
+ Royaal eigen perceel [478 m²]
+ Levensloopbestendig
+ Royale vrijstaande garage met o.a. sauna, toilet en eigen CV
+ Ruime oprit voor meerdere auto’s
+ Energielabel D
+ 10 zonnepanelen
+ Vloerverwarming begane grond
Nieuwsgierig geworden naar deze veelzijdige woning? Neem gerust contact met ons op voor meer informatie of plan een bezichtiging in. We laten je deze woning graag persoonlijk zien!
Deze informatie is door ons met de nodige zorgvuldigheid samengesteld, veelal aan de hand van de door verkoper aan ons ter hand gestelde gegevens en tekeningen. Onzerzijds wordt echter geen enkele aansprakelijkheid aanvaard voor enige onvolledigheid, onjuistheid of anderszins, dan wel de gevolgen daarvan. Dit geldt voor onder meer de opgegeven maten, oppervlakten, isolatie en ouderdom van technische installaties.