Verkocht: Collot D'escurystrjitte, 9047 Minnertsga
Verkocht: Collot D'escurystrjitte, 9047 Minnertsga
Verkocht: Collot D'escurystrjitte, 9047 Minnertsga
Verkocht A+++

Collot D'escurystrjitte, 9047 Minnertsga

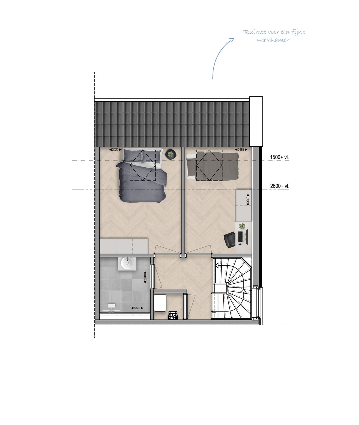
Beschrijving Collot D'escurystrjitte

Nieuw in de verkoop | 8 rug-aan-rug nieuwbouwwoningen | Boekerij in Minnertsga!

Ben jij op zoek naar een betaalbare nieuwbouwwoning in het sfeervolle dorp Minnertsga? Dan is dit jouw kans!

Deze twee woongebouwen worden de blikvangers van de buurt. In elk van de blokken vormen vier woningen...

Kenmerken

Type object Woonhuis, eengezinswoning, hoekwoning
Bouwperiode 2025
Status Verkocht
Aangeboden sinds Dinsdag 23 september 2025