Beschrijving
        
            Welkom bij Gralda 5-K181, een instapklaar chalet op het prachtige vakantiepark In Style in Menaam. Gelegen op een ruime kavel van 244 m² eigen grond, biedt deze woning alles wat je zoekt voor een heerlijk verblijf, zowel voor eigen gebruik als voor verhuur.
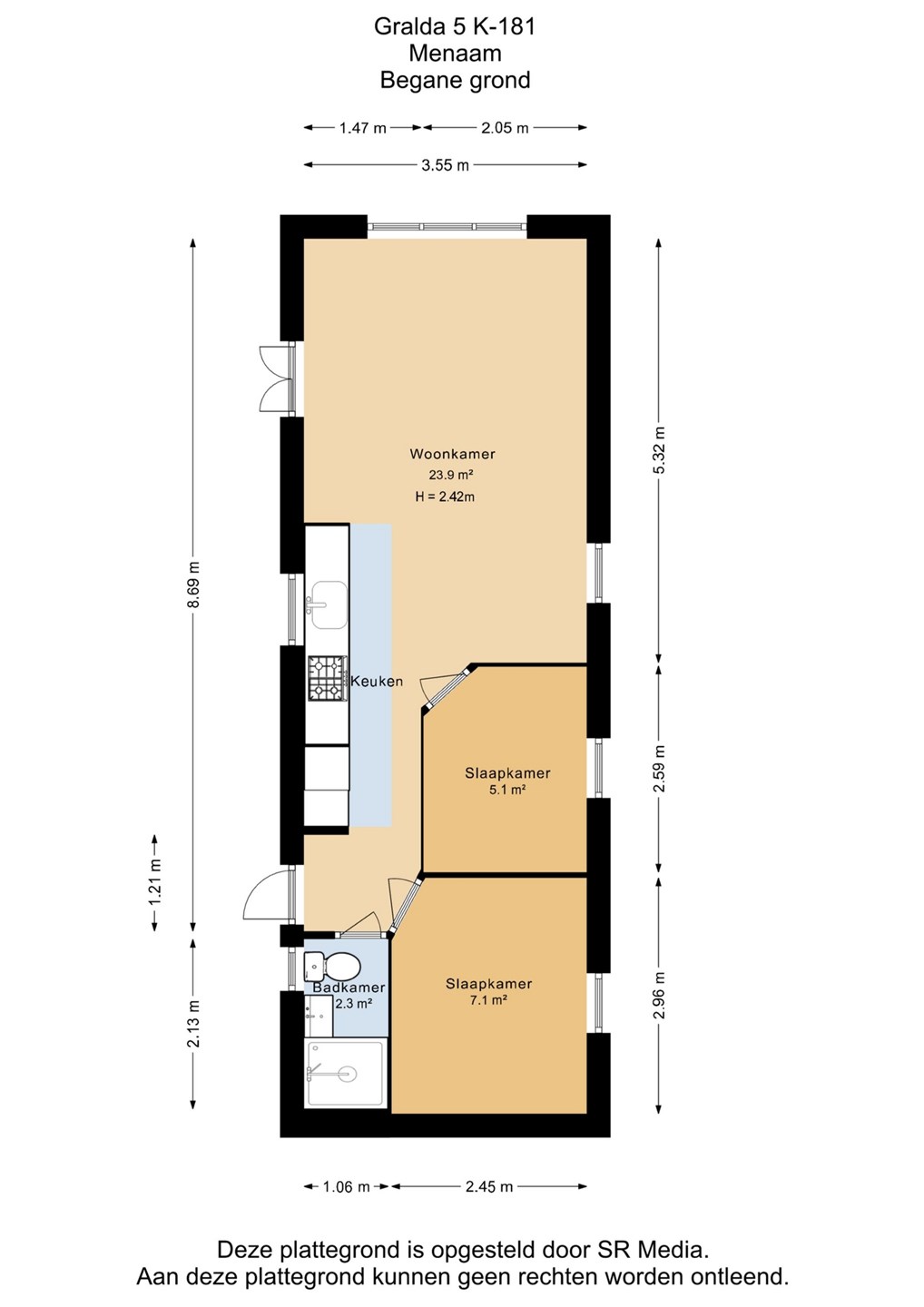
- 4 persoons: De woning is perfect voor een gezinsvakantie of een weekendje weg met vrienden. Met twee comfortabele slaapkamers is er voldoende ruimte voor iedereen.
  
- Instapklaar: De woning is modern en eigentijds ingericht, zodat je direct kunt genieten van jouw verblijf zonder enige zorgen. De woning wordt inclusief de volledige inboedel geleverd, zodat je niets extra’s hoeft aan te schaffen.
- Ruime tuin: De woning beschikt over een royale tuin van 244 m² eigen grond, waar je heerlijk kunt ontspannen, barbecuen of gewoon genieten van de rust en ruimte. 
- Dichtbij de Waddenzee: De locatie is ideaal voor natuurliefhebbers en watersporters. De Waddenzee ligt op korte afstand, waar je kunt genieten van wandelingen, fiets- en boottochten, en de unieke natuur.
- Modern en eigentijds: De woning is stijlvol ingericht met een frisse, moderne uitstraling. Alle elementen zijn zorgvuldig gekozen om een aangename sfeer te creëren, van het lichte interieur tot de praktische indeling.
IDEAAL VOOR VERHUUR OF EIGEN GEBRUIK
Of je nu op zoek bent naar een vakantiewoning voor eigen gebruik of een rendabele verhuurmogelijkheid, Gralda 5-K181 biedt jou de perfecte balans tussen comfort en veelzijdigheid. Het vakantiepark In Style biedt een geweldige plek voor zowel rust als avontuur, met diverse faciliteiten en een prachtige omgeving.
Gralda 5-K181 is dé ideale keuze voor wie op zoek is naar een prachtige vakantiewoning in Friesland, met de mogelijkheid om de woning zelf te gebruiken of te verhuren. Wacht niet langer en ontdek wat deze instapklare woning te bieden heeft! Kijkje nemen bij deze recreatiewoning? Neem dan snel contact met ons op. We leiden je graag rond!
Deze informatie is door ons met de nodige zorgvuldigheid samengesteld, veelal aan de hand van de door verkoper aan ons ter hand gestelde gegevens en tekeningen. Onzerzijds wordt echter geen enkele aansprakelijkheid aanvaard voor enige onvolledigheid, onjuistheid of anderszins, dan wel de gevolgen daarvan. Dit geldt voor onder meer de opgegeven maten, oppervlakten, isolatie en ouderdom van technische installaties.