Beschrijving
In het rustige Marsum staat deze ruime twee-onder-een-kapwoning met stenen garage, diepe achtertuin en maar liefst vier slaapkamers. Met een woonoppervlakte van ca. 105 m², een perceel van 240 m² en een fijne indeling is dit een ideale woning voor starters én gezinnen die graag ruim wonen op een rustige plek.
De woning ligt aan een plantsoen zonder directe overburen, waardoor je veel privacy ervaart én vrij uitzicht hebt. De woning wordt grotendeels leeg opgeleverd, waardoor je alle ruimte hebt om de inrichting volledig naar eigen smaak vorm te geven. De keuken en de vloer op de verdieping blijven aanwezig; verder kun je de woning helemaal invullen volgens jouw woonwensen.
Begane grond
Via de entree kom je in de hal met toilet en trapopgang. De woonkamer is prettig licht dankzij de grote ramen aan voor- en achterzijde. Met ca. 33 m² is er volop ruimte voor een comfortabele zithoek én een grote eettafel. Doordat de woning straks grotendeels leeg is, zie je direct hoeveel mogelijkheden er zijn om hier jouw eigen sfeer neer te zetten.
De open keuken is praktisch ingedeeld en biedt toegang tot zowel de bijkeuken als de tuin. Achter de keuken ligt de bijkeuken met witgoedopstelling en extra bergruimte. Vanuit de tuin loop je door naar de stenen garage (ca. 13 m²). Ideaal voor het stallen van de auto, fietsen of als hobbyruimte. Ook is de garage bereikbaar via de dubbele deuren aan de voorzijde.
Verdieping
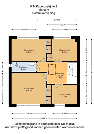
De verdieping beschikt over vier slaapkamers, variërend van ca. 5 tot ruim 11 m². De kamers zijn stuk voor stuk licht en praktisch ingedeeld – ideaal voor kinderen, logees, een thuiswerkplek of hobbyruimte.
De huidige badkamer is eenvoudig en toe aan een grondige verbouwing. Dit biedt direct kansen: veel vergelijkbare woningen kiezen ervoor om één van de slaapkamers op te offeren voor een royale en moderne gezinsbadkamer. Met zo’n indeling creëer je een toekomstbestendige ruimte met alle comfort die je wenst.
Buitenleven
De woning beschikt over een voor- en achtertuin, waarbij de achtertuin lekker diep is en volop mogelijkheden biedt om een fijne buitenruimte te creëren: van een groot terras tot speelruimte of een zonnige zithoek.
Aan de voorzijde kijk je uit op een plantsoen, wat zorgt voor een rustige woonbeleving en extra privacy.
Locatie
Marsum is een vriendelijk en rustig dorp vlak bij Leeuwarden. Dankzij de ligging aan een plantsoen woon je hier vrij. Voor dagelijkse voorzieningen kun je terecht in het dorp zelf of in het nabijgelegen Stiens en Leeuwarden.
De uitvalswegen richting Leeuwarden, Franeker en Harlingen zijn snel bereikbaar, waardoor je centraal woont, maar toch de rust van een dorpsomgeving ervaart.
Pluspunten op een rij
• Ruime 2-onder-1-kapwoning
• Vier slaapkamers
• Stenen garage aan de woning
• Rustige ligging
• Diepe achtertuin
• Geschikt voor starters én gezinnen
Deze informatie is door ons met de nodige zorgvuldigheid samengesteld, veelal aan de hand van de door verkoper aan ons ter hand gestelde gegevens en tekeningen. Onzerzijds wordt echter geen enkele aansprakelijkheid aanvaard voor enige onvolledigheid, onjuistheid of anderszins, dan wel de gevolgen daarvan. Dit geldt voor onder meer de opgegeven maten, oppervlakten, isolatie en ouderdom van technische installaties.