Beschrijving
Aan een sfeervol en rustig straatje in het charmante Hallum staat deze instapklare woning. Achter de karakteristieke gevel schuilt een modern afgewerkt interieur, waar sfeer en comfort perfect samenkomen. Met onder andere een moderne keuken, een badkamer op de begane grond en openslaande deuren naar de zonnige achtertuin is dit een heerlijke plek om thuis te komen.
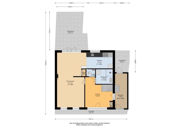
Indeling
Begane grond
Je komt binnen in de ruime entree/hal, waar direct de prettige lichtinval opvalt. Vanuit hier heb je toegang tot de woonkamer, het toilet en de badkamer. De woonkamer is een heerlijke leefruimte met grote raampartijen en een fijne indeling voor zowel een zit- als eetgedeelte. De openslaande deuren vormen hier echt een pluspunt: je loopt zo de achtertuin in, waar een sfeervolle vlonder ligt en je volop kunt genieten van het buitenleven. Aansluitend bevindt zich de moderne keuken, uitgevoerd in een strakke opstelling en voorzien van diverse inbouwapparatuur. Een praktische en lichte ruimte waar koken en gezelligheid samenkomen.
De badkamer op de begane grond is modern afgewerkt en beschikt over een inloopdouche, wastafel en wasmachineaansluiting. Ideaal en toekomstbestendig. Daarnaast is er een separaat toilet aanwezig.
Via de hal bereik je ook de berging, een handige ruimte voor opslag, fietsen of hobby.
Eerste verdieping
Op de verdieping vind je 3 slaapkamers. Alle kamers zijn netjes afgewerkt en goed bruikbaar als slaap-, werk- of hobbyruimte. Daarnaast is er een overloop met praktische bergruimte en een inloopkast — ideaal voor extra opslag.
Tuin
De achtertuin is verzorgd aangelegd en voorzien van een vlonderterras waar je heerlijk beschut kunt zitten. Dankzij de openslaande deuren wordt binnen en buiten hier moeiteloos met elkaar verbonden – een fijne plek om te ontspannen en te genieten van privacy.
Goed om te weten:
+ Energielabel C
+ 6 zonnepanelen
+ Verwarming d.m.v. CV ketel (Remeha, bouwjaar 2016) en airconditioning
+ Moderne keuken met inbouwapparatuur
+ Moderne badkamer op de begane grond
+ Wasmachineaansluiting in badkamer
+ Praktische berging aanwezig
+ Gelegen in beschermd stads- en dorpsgezicht
Hallum
De woning ligt in het charmante dorp Hallum, een plek waar rust en ruimte samenkomen met een goede bereikbaarheid. Hallum beschikt over diverse voorzieningen zoals een supermarkt, basisschool en sportverenigingen. Daarnaast ben je binnen korte tijd in Leeuwarden of Franeker. Ook de Waddenkust ligt op korte afstand — perfect voor wie houdt van natuur en weidse uitzichten.
Deze informatie is door ons met de nodige zorgvuldigheid samengesteld, veelal aan de hand van de door verkoper aan ons ter hand gestelde gegevens en tekeningen. Onzerzijds wordt echter geen enkele aansprakelijkheid aanvaard voor enige onvolledigheid, onjuistheid of anderszins, dan wel de gevolgen daarvan. Dit geldt voor onder meer de opgegeven maten, oppervlakten, isolatie en ouderdom van technische installaties.