Beschrijving
Ideale gezinswoning in Hallum – instapklaar en met volop mogelijkheden! Deze nette hoekwoning aan It Apelhôf 10 in Hallum heeft alles in huis voor een comfortabel gezinsleven. Met vier slaapkamers, een moderne badkamer, een ruime zolder met vaste trap én een heerlijke zonnige tuin op het zuidwesten, woon je hier met veel ruimte en privacy. Wordt dit jouw nieuwe [t]huis?
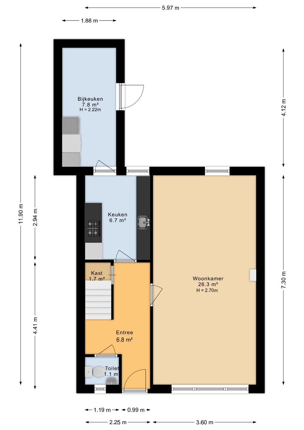
De indeling is als volgt:
Begane grond:
Je komt binnen in de hal met toilet, trapopgang en handige trapkast. De lichte doorzon-woonkamer is voorzien van een laminaatvloer en grote raampartijen aan zowel de voor- als achterzijde, wat zorgt voor een prettige lichtinval. Er is plek voor zowel een gezellige zithoek als een royale eettafel. Vanuit hier heb je fijn zicht op de achtertuin. De gesloten keuken is praktisch ingedeeld met twee rechte opstellingen en voorzien van diverse inbouwapparatuur. Aansluitend vind je de bijkeuken, ideaal voor extra bergruimte of het plaatsen van witgoed. Vanuit de bijkeuken stap je de achtertuin in.
Eerste verdieping:
De overloop geeft toegang tot vier slaapkamers, variërend in grootte en geschikt als slaap-, werk- of studeerkamer. De moderne badkamer (ca. 5 jaar oud) is smaakvol uitgevoerd met inloopdouche, wastafelmeubel en tweede toilet.
Tweede verdieping:
Via een vaste trap bereik je de ruime zolderverdieping. Met 16 m² aan vloeroppervlak en voldoende hoogte is hier eenvoudig een vijfde slaapkamer of werk-/hobbyruimte te realiseren.
Buitenruimte:
De achtertuin van deze woning is een echte plus! Dankzij de ligging op het zuidwesten geniet je hier van veel zonuren en kun je tot in de avond heerlijk buiten zitten. De tuin is volledig omheind met een groene haag en houten schutting, waardoor je volop privacy hebt en kinderen of huisdieren veilig kunnen spelen. Het ruime terras direct achter de woning biedt volop plek voor een eettafel of gezellige picknicktafel, perfect voor lange zomeravonden of een barbecue met vrienden. Verderop in de tuin is een tweede terras aangelegd waar nu een comfortabele loungehoek staat. Zo kun je op elk moment van de dag kiezen tussen zon of schaduw.Het praktische van deze tuin is dat hij grotendeels is bestraat, waardoor je weinig onderhoud hebt, maar er is ook een stuk gazon aanwezig dat zorgt voor een groene uitstraling en waar kinderen kunnen spelen. Daarnaast is er voldoende ruimte om nog een speeltoestel, trampoline of een tuinhuis te plaatsen. De tuin is bovendien achterom bereikbaar, wat handig is voor fietsen, afvalcontainers of tuinspullen. Kortom: een ruime, zonnige en onderhoudsvriendelijke achtertuin met veel privacy en mogelijkheden, waar je optimaal kunt genieten van het buitenleven!
Goed om te weten:
• Instapklaar en ideaal voor een (opgroeiend) gezin
• Moderne badkamer (ca. 5 jaar oud)
• Voorzien van 6 zonnepanelen
• Zonnige, besloten achtertuin met veel privacy
• Zolder met vaste trap, mogelijkheid voor 5e slaapkamer
• Energielabel C
• Speeltuin in de straat en kinderopvang dichtbij
It Apelhôf is een rustige en kindvriendelijke straat in Hallum. Voor de kinderen is er een speeltuin om de hoek en ook kinderopvang en basisscholen zijn dichtbij. Hallum zelf is een levendig dorp met alle voorzieningen die je nodig hebt: supermarkten, sportverenigingen, een zwembad en een rijk verenigingsleven. Bovendien ben je met de auto binnen ca. 20 minuten in Leeuwarden en Franeker. Ook Dokkum en de Waddenkust zijn goed bereikbaar, waardoor je hier het beste van twee werelden ervaart: rustig wonen met stad en natuur dichtbij.
Deze informatie is door ons met de nodige zorgvuldigheid samengesteld, veelal aan de hand van de door verkoper aan ons ter hand gestelde gegevens en tekeningen. Onzerzijds wordt echter geen enkele aansprakelijkheid aanvaard voor enige onvolledigheid, onjuistheid of anderszins, dan wel de gevolgen daarvan. Dit geldt voor onder meer de opgegeven maten, oppervlakten, isolatie en ouderdom van technische installaties.