Beschrijving
Karaktervol wonen in het hart van Berltsum – met volop mogelijkheden! Deze karakteristieke dorpswoning uit ca. 1870 ademt sfeer en authenticiteit, met onder andere de fraaie voorgevel, hoge raampartijen en de kenmerkende kapvorm als blikvangers. Hier woon je midden in het dorp, met de voorzieningen letterlijk om de hoek. Achter de voorgevel schuilt een verrassend ruime woning met drie slaapkamers, een recente keuken en een heerlijke overkapping in de tuin. Een fijne basis, waar je met wat aandacht en onderhoud écht je eigen thuis van kunt maken.
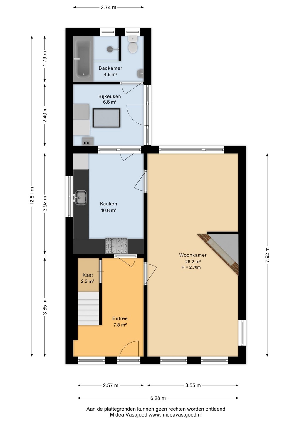
Indeling begane grond
Via de entree kom je in de hal met trapopgang en toegang tot de woonkamer. De doorzonwoonkamer is ruim opgezet en heeft een warme uitstraling dankzij de schouw met haard en de houten accenten. De hoge plafonds en grote ramen zorgen voor een prettige lichtinval en versterken het authentieke gevoel.Aan de achterzijde is volop lichtinval en zicht op de tuin.
De keuken is recent vernieuwd [2024] en uitgevoerd in een stijlvolle, donkere hoekopstelling met houtlook werkblad en bijpassende achterwand. Een mooie combinatie van modern comfort en een knipoog naar het karakter van de woning. Eyecatcher in de keuken is het Falcon fornuis – een klassiek Engels fornuis met een robuuste uitstraling en volop kookmogelijkheden. Ideaal voor wie graag uitgebreid kookt of bakt. Daarnaast is de keuken praktisch ingericht met voldoende werkruimte en kastruimte, waardoor functionaliteit en sfeer hier hand in hand gaan.
Aansluitend vind je de bijkeuken met witgoedaansluitingen en extra bergruimte. Vanuit hier is er toegang tot de badkamer op de begane grond, voorzien van ligbad, douche, toilet en wastafel.
Eerste verdieping
De overloop geeft toegang tot drie slaapkamers. Aan de voorzijde bevindt zich een compacte kamer, ideaal als kinderkamer, werkruimte of inloopkast. Daarnaast zijn er twee volwaardige slaapkamers, beide met prettig daglicht en praktische indelingsmogelijkheden.
Buitenruimte
De achtertuin is volledig omheind en biedt daarmee volop privacy. Dankzij de eigen achterom is de tuin ook praktisch bereikbaar. De onderhoudsvriendelijke bestrating zorgt voor weinig werk en onder de overkapping zit je heerlijk beschut – een fijne plek om buiten te eten of te ontspannen, ongeacht het seizoen. Onderdeel van de overkapping is een compacte berging voor fietsen en tuingereedschap.
Goed om te weten:
• Recente, moderne keuken
• Badkamer op de begane grond
• Drie slaapkamers
• Fijne overkapping in de tuin
• Volledig omheinde achtertuin met eigen achterom
• Centrale ligging in het dorp
• Woning vraagt op onderdelen om onderhoud en aandacht
Buorren 6 ligt midden in Berltsum, met winkels, school en sportvoorzieningen dichtbij. Bovendien woon je hier op korte afstand van Franeker en Leeuwarden, met goede verbindingen in de regio. Zoek je een woning met historie, sfeer en potentie op een centrale plek in Berltsum? Dan is Buorren 6 absoluut de moeite waard om te bekijken.
Deze informatie is door ons met de nodige zorgvuldigheid samengesteld, veelal aan de hand van de door verkoper aan ons ter hand gestelde gegevens en tekeningen. Onzerzijds wordt echter geen enkele aansprakelijkheid aanvaard voor enige onvolledigheid, onjuistheid of anderszins, dan wel de gevolgen daarvan. Dit geldt voor onder meer de opgegeven maten, oppervlakten, isolatie en ouderdom van technische installaties.