Beschrijving

Aan de karakteristieke Oudebildtdijk, de langste straat van Nederland, staat deze charmante dijkwoning uit 1931. Een woning die barst van karakter en verrassende ruimtes, met een goed woonoppervlak en een diepe tuin met diverse bijgebouwen. Hier woon je anders – met sfeer, vrijheid en uitzicht over het uitgestrekte Bildtse landschap.

Sfeervol en verrassend wonen
Achter de bescheiden gevel schuilt een woning vol karakter en mogelijkheden. De woonkamer ademt warmte dankzij de houten balken, grote raampartijen met HR++ beglazing en een authentieke sfeer. Aansluitend bevindt zich een eetkamer met houtkachel – een heerlijke plek om lange avonden door te brengen – met boven de ruimte een sfeervolle vliering, ideaal als werk- of leeshoek met prachtig uitzicht over de omgeving.

De keuken en badkamer zijn praktisch ingericht, waarbij de badkamer in 2022 volledig is vernieuwd. De woning wordt verwarmd middels een cv-installatie en een houtkachel, wat zorgt voor een behaaglijk en authentiek wooncomfort.

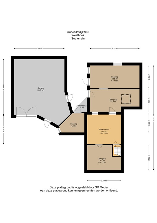
Unieke indeling met verrassende ruimtes
De woning beschikt momenteel over één ruime slaapkamer op de verdieping, maar door het aanbrengen van een extra deur zijn er eenvoudig twee slaapkamers te realiseren. Onder de woning bevindt zich nog een extra slaapkamer met aangrenzende opslagruimte – perfect voor logees, hobby of voor jezelf.

Naast de eetkamer ligt nog een aparte kamer met een sfeervolle uitstraling, die je kunt gebruiken als atelier, tweede woonkamer, werkruimte of juist als gezellige tuinkamer. De indeling maakt deze woning bijzonder veelzijdig – ideaal voor wie graag iets unieks zoekt met karakter en eigen mogelijkheden.

Buitenleven met ruimte en mogelijkheden
Achter de woning heb je een prachtig vrij uitzicht over de uitgestrekte landerijen – een uitzicht dat nooit verveelt en elke dag een ander gezicht heeft. De grote vrijstaande garage is een absoluut pluspunt van deze woning: enorm in formaat en multifunctioneel in gebruik. Er is meer dan genoeg ruimte om meerdere voertuigen te stallen, zoals een auto, motor, caravan of zelfs een camper. Daarnaast leent de garage zich uitstekend als werkplaats voor klussers, opslagruimte voor materiaal of atelier voor de creatieve doe-het-zelver. Dankzij de royale afmetingen en praktische indeling is dit een plek met volop mogelijkheden voor wie graag de ruimte heeft om te werken, sleutelen of zijn hobby uit te oefenen.

Achter de garage bevindt zich nog een geïsoleerde opslagruimte met elektra, die voorheen dienstdeed als bed & breakfast voor toeristen. Een leuke bonus voor wie droomt van een gastenverblijf of creatieve werkruimte.

Een woning met karakter én kansen
De woning is bewoonbaar, maar vraagt op sommige punten om onderhoud en modernisering. Juist dat maakt dit huis interessant: het biedt volop ruimte om je eigen smaak en woonideeën toe te passen. Met wat aandacht en liefde kun je hier iets bijzonders creëren – een woning die net zo eigenzinnig is als de Oudebildtdijk zelf.

Pluspunten
• Dijkwoning uit 1931 met karakter en verrassende indeling
• Prachtige ligging aan de historische Oudebildtdijk met vrij uitzicht
• Badkamer vernieuwd in 2022
• Verwarming via cv-installatie en houtkachel
• HR++ beglazing 
• 2 slaapkamers met mogelijkheid tot meer
• Grote garage met werkplaatsfunctie
• Geïsoleerde ruimte met elektra, geschikt als opslag of gastenverblijf
• Volop mogelijkheden om te moderniseren en naar eigen smaak in te richten

Bij dit object is het recht van opstal van toepassing, waarbij Wetterskip Fryslân eigenaar is van de grond. Dit komt doordat de dijk vroeger als waterkering heeft gefungeerd, waardoor de grond niet in eigendom kon worden verkregen. Het recht is eeuwigdurend en kent een lage jaarlijkse canon van slechts ca. € 13,95.

Deze informatie is door ons met de nodige zorgvuldigheid samengesteld, veelal aan de hand van de door verkoper aan ons ter hand gestelde gegevens en tekeningen. Onzerzijds wordt echter geen enkele aansprakelijkheid aanvaard voor enige onvolledigheid, onjuistheid of anderszins, dan wel de gevolgen daarvan. Dit geldt voor onder meer de opgegeven maten, oppervlakten, isolatie en ouderdom van technische installaties.

Kenmerken