Beschrijving

Welkom in dit charmante Tiny House op een prachtige locatie op het vakantiepark De Friese Wadden, gelegen aan de Vogels' Tún 48 in Tzummarum. Dit knusse recreatieverblijf biedt een oase van rust en buitenruimte, ideaal voor maximaal 3 personen om te genieten van een ontspannen verblijf. Met een compacte indeling, wellness voorzieningen en een vrijstaande kunststof berging op een perceel van 183 m², is dit Tiny House de perfecte plek voor zorgeloos recreëren maar ook aantrekkelijk voor verhuur. Deze recreatiewoning wordt inclusief inboedel aangeboden. Wordt dit jouw nieuwe recreatiewoning…? De indeling is als volgt:

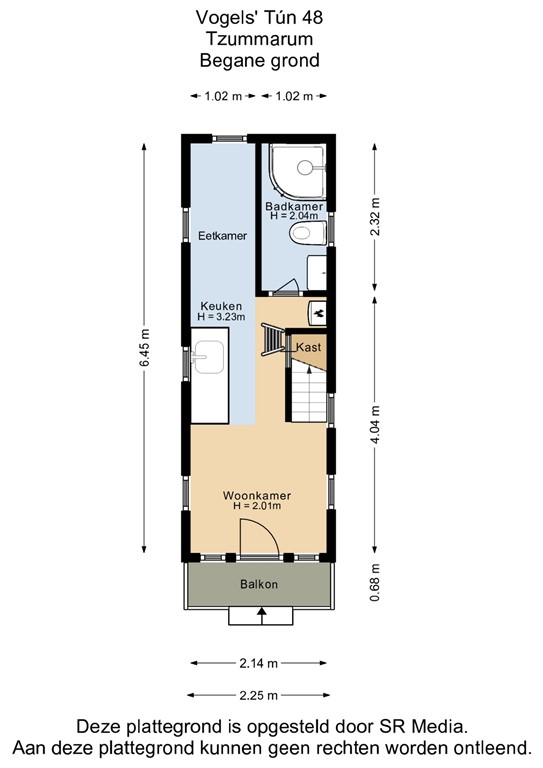
Tiny house:
Dit gezellige Tiny House verwelkomt je met een lichte woonkamer en open keuken, waardoor de ruimte optimaal wordt benut. Met overvloedig natuurlijk licht en een doordachte indeling voelt de woonruimte uitnodigend aan. Een subtiele trapopgang leidt naar de knusse slaapruimte voor twee personen. De andere slaapruimte kan bereikt worden middels een vaste ladder. Tevens is er een separate badkamer met toilet. De efficiënte indeling maakt dit vakantieverblijf op de Friese Wadden tot een comfortabele en praktische plek om te ontspannen. De woning is voorzien van kunststof kozijnen en gedeeltelijk van vloerverwarming. Cv-installatie (Vaillant, 2021) is gesitueerd in de woonkamer. 

Buiten: 
De tuin is een heerlijke plek om écht tot rust te komen. Rondom de woning ligt een strak aangelegde, volledig omsloten tuin met veel privacy, omgeven door groene hagen. Het ruime terras biedt volop plek voor een loungeset of eettafel en vormt een fijne verbinding tussen binnen en buiten. Wat deze tuin extra bijzonder maakt, zijn de wellnessvoorzieningen. Zo is er een houten barrelsauna waar je op elk moment van de dag kunt ontspannen, en een hottub voor lange avonden onder de sterren. Op het gazon liggen ligbedden klaar om in alle rust van de zon te genieten. Dankzij de beschutte ligging en de praktische indeling voelt de tuin als een privé buitenruimte, perfect passend bij het recreatieve karakter van de woning. Een plek waar ontspannen, comfort en vakantiegevoel samenkomen.

Voor extra gemak is er een vrijstaande kunststof berging beschikbaar, waardoor je ruimte hebt om je spullen op te bergen. Daarnaast is er voldoende parkeerruimte voor een auto. Met zijn gunstige ligging profiteert de tuin van overvloedige zonuren, en het perceel zelf bevindt zich op een prachtige locatie in het vakantiepark, waardoor je de perfecte setting hebt voor heerlijke dagen in de buitenlucht.

Het betreft een tiny house voor maximaal 3 personen die door de jaren heen goed is onderhouden. De woning biedt uitstekende verhuurmogelijkheden, maar is natuurlijk ook te gebruiken voor eigen recreatie. Het is toegestaan om 365 dagen te recreëren, echter permanente inschrijving is niet toegestaan. De parklasten bedragen ca. € 780,- per jaar. 

Recreatiepark De Friese Wadden in Tzummarum biedt veel voorzieningen zoals het centrumgebouw met receptie, zwembad, speelterrein, sportgelegenheden, cafetaria en is gelegen op een van de mooiste stukjes van Nederland. Op het park vind je de rust die je zoekt, terwijl de omgeving volop mogelijkheden biedt. Binnen een paar minuten sta je te genieten van het prachtige uitzicht over de Waddenzee. Een boot naar één van de Waddeneilanden ligt binnen handbereik. Of geniet van de vele fietstochten die je in de omgeving kunt maken door diverse pittoreske dorpjes. De hoofdstad van Friesland, Leeuwarden, is gelegen op circa 17 km van Tzummarum. 

Bijzonderheden:
•	Nette Tinyhouse uit 2021 
•	Gelegen op het vakantiepark De Friese Wadden
•	Inclusief inboedel en wellness voorzieningen (barrelsauna en hottub)
•	Instapklare recreatiewoning
•	Goede verhuurmogelijkheden
•	Vrijstaande kunststof berging
•	365 dagen recreëren is mogelijk (permanente inschrijving is niet toegestaan)

Kijkje nemen bij deze keurige recreatiewoning? Neem dan snel contact met ons op. We leiden je graag rond!

Deze informatie is door ons met de nodige zorgvuldigheid samengesteld, veelal aan de hand van de door verkoper aan ons ter hand gestelde gegevens en tekeningen. Onzerzijds wordt echter geen enkele aansprakelijkheid aanvaard voor enige onvolledigheid, onjuistheid of anderszins, dan wel de gevolgen daarvan. Dit geldt voor onder meer de opgegeven maten, oppervlakten, isolatie en ouderdom van technische installaties.

Kenmerken