Beschrijving

Op vakantiepark De Friese Wadden in Tzummarum staat deze charmante en goed onderhouden recreatiewoning aan Vogels’ Tún 18. Gebouwd in 2016, op een royaal perceel van circa 543 m² eigen grond, biedt deze woning een heerlijke combinatie van rust, ruimte en comfort. Dankzij de ligging op een ruime kavel, de moderne voorzieningen en de mogelijkheid om er een 6-persoonshuisje van te maken, is dit een ideale plek voor zowel eigen gebruik als recreatieve verhuur.

Of je nu op zoek bent naar een eigen tweede (t)huis of een interessante investering — deze woning is klaar om van te genieten.

Indeling
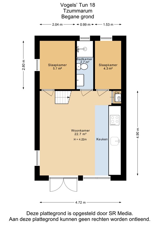
Via de entree stap je binnen in de lichte woonkamer met een hoge nok en openslaande deuren naar het terras. De ruimte voelt direct uitnodigend aan en biedt voldoende plek voor een zithoek en eethoek. De open keuken is praktisch ingericht en voorzien van diverse apparatuur.

Aansluitend vind je twee slaapkamers en een nette badkamer met douche, wastafel en toilet. Via de vaste trap bereik je de verdieping, waar zich nog een derde slaapkamer bevindt. Samen maakt dit de woning geschikt voor het verblijf van tot wel zes personen.

De woning is goed geïsoleerd en voorzien van een cv-installatie en airco, waardoor het er in elk seizoen comfortabel vertoeven is — van een warme zomerdag tot een knusse winteravond.

Buitenruimte
De recreatiewoning ligt op een opvallend ruim perceel van circa 543 m² met een verzorgde, groene tuin rondom. Dankzij de royale afmetingen geniet je hier van veel privacy en zon. Voor de woning is een eigen parkeerplaats, en direct naast de woning bevindt zich een aangebouwde houten berging, ideaal voor fietsen, tuingereedschap of strandspullen.

De tuin biedt volop mogelijkheden: creëer extra zitplekken, een speelruimte of zelfs een buitenkeuken — de ruimte nodigt uit om het buitenleven volop te omarmen.

Pluspunten op een rij
• Goed onderhouden
• Perceel circa 543 m²
• Airco en kachel met cv-installatie
• Drie slaapkamers
• Extra berging
• Eigen parkeerplaats direct voor de woning
• Ruime tuin met veel privacy
• Geschikt voor eigen gebruik én verhuur

Vakantiepark De Friese Wadden
Het park biedt diverse voorzieningen zoals een zwembad, speeltuin, sportveld, café en receptie. Vanuit de woning ben je binnen enkele minuten bij de Waddenzee, waar je kunt wandelen, fietsen of wadlopen. De omgeving van Tzummarum is rijk aan natuur en rust, met karakteristieke Friese dorpen en de stad Leeuwarden op slechts 20 minuten rijden.

Hier geniet je van de stilte en ruimte van het Friese landschap, met de zee bijna in je achtertuin en volop mogelijkheden om te ontspannen of te ontdekken.

Deze informatie is door ons met de nodige zorgvuldigheid samengesteld, veelal aan de hand van de door verkoper aan ons ter hand gestelde gegevens en tekeningen. Onzerzijds wordt echter geen enkele aansprakelijkheid aanvaard voor enige onvolledigheid, onjuistheid of anderszins, dan wel de gevolgen daarvan. Dit geldt voor onder meer de opgegeven maten, oppervlakten, isolatie en ouderdom van technische installaties.

Kenmerken