Beschrijving

Op een leuke plek in het dorp staat deze vrijstaande woning met garage, diepe oprit en verrassend veel (bij)ruimte. Georg van Saksenstraat 42 in St.-Jacobiparochie biedt een fijne basis voor wie graag zijn eigen woonwensen wil realiseren. Het huis vraagt om wat liefde en aandacht, maar juist dat maakt het zo’n toffe kans: maak er jouw comfortabele [t]huis van!

De indeling is als volgt:

Begane grond
Je komt binnen in de entree met doorgang naar de lichte woonkamer aan de voorzijde. Dankzij de grote ramen is dit een prettige leefruimte. Vanuit de woonkamer loop je via de hal door naar de keuken met eenvoudige keukenopstelling. Handig detail: er is een extra kamer op de begane grond, ideaal als levensloopbestendige optie of werkkamer. Verder vind je op de begane grond de badkamer met douche en wastafel, een separaat toilet, de bijkeuken/berging met aansluiting voor witgoed en de garage die vanaf de oprit toegankelijk is. Achter de woning liggen meerdere bergingen en een overkapping; perfect voor opslag, hobby of de klusser die ruimte nodig heeft.

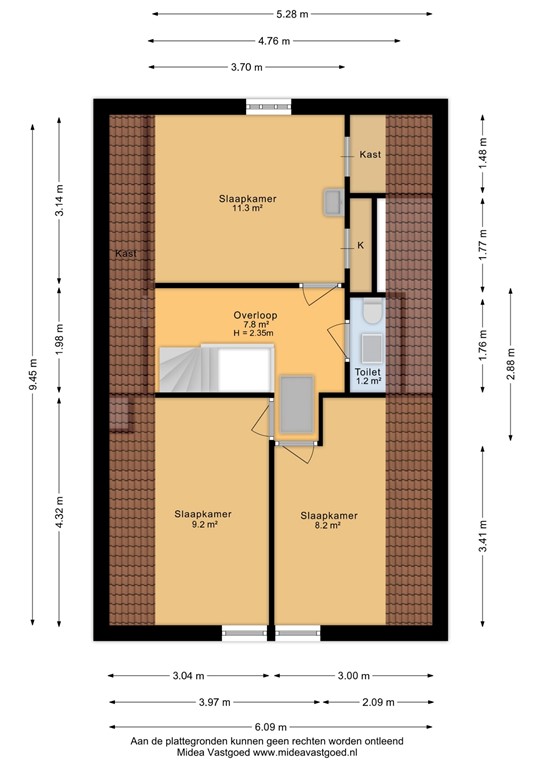
Verdieping
Op de eerste verdieping zijn drie slaapkamers van mooi formaat en een overloop. Eén van de kamers heeft vaste kastruimte. Ook is hier nog een separaat toilet aanwezig.

Vliering
Via een vlizotrap bereik je de zolderberging; handig voor spullen die je niet dagelijks nodig hebt.

Buiten
Aan de voorzijde ligt een verzorgde voortuin en een eigen oprit met plek voor meerdere auto’s. Achter vind je een ruime achterplaats, bergingen en een overkapping. Een echte plus voor wie graag buiten klust, tuiniert of opbergruimte nodig heeft.

Locatie
St.-Jacobiparochie is een levendig dorp op het Bildt, met voorzieningen zoals een basisschool, sportverenigingen, horeca en een actief verenigingsleven. De ligging is ideaal: binnen enkele minuten ben je in St. Annaparochie voor een uitgebreider winkelaanbod en via de N393 en N357 rijd je vlot richting Franeker, Harlingen of Leeuwarden. Dankzij de combinatie van rust, ruimte en goede bereikbaarheid is dit een fijne plek om te wonen.

Goed om te weten
• Energielabel: F
• De woning heeft aandacht nodig, maar biedt veel potentie
• Slaapkamer op de begane grond
• Recent buitenschilderwerk [2024]
• Vrijstaand met garage, meerdere bergingen en overkapping
• Royale oprit voor meerdere auto’s
• Ouderdoms- en asbestclausule van toepassing
• 'As is where is'-clausule van toepassing

Kortom: een woning met karakter, veel ruimte en volop mogelijkheden voor de handige starter, doorstromer of iemand die gelijkvloers wil wonen. Zin om te komen kijken? Maak dan zeker een afspraak! 

Deze informatie is door ons met de nodige zorgvuldigheid samengesteld, veelal aan de hand van de door verkoper aan ons ter hand gestelde gegevens en tekeningen. Onzerzijds wordt echter geen enkele aansprakelijkheid aanvaard voor enige onvolledigheid, onjuistheid of anderszins, dan wel de gevolgen daarvan. Dit geldt voor onder meer de opgegeven maten, oppervlakten, isolatie en ouderdom van technische installaties.

Kenmerken