Beschrijving

Aan de rand van het Bildt, waar het landschap oneindig lijkt en de stilte nog écht bestaat, staat deze bijzondere vrijstaande woning op een perceel van maar liefst 4585 m². Boonweg 4 is een plek met historie, ruimte en karakter. Het pand werd in het verleden gebruikt door Wetterskip Fryslân als uitvalsbasis voor het onderhoud van de zeedijk, wat de enorme hoeveelheid bijgebouwen en praktische ruimtes verklaart. Vandaag de dag vormt het geheel een unieke kans voor wie royaal wil wonen en werken op één locatie, of simpelweg verlangt naar rust, vrijheid en buitenruimte. Daarnaast ligt de woning op steenworp afstand van de Zwarte Haan, een geliefde plek aan de dijk

Entree
Je komt binnen in een ruime entree die fungeert als centrale as van het huis. Vanuit hier heb je toegang tot de eetkamer, de keuken, een separaat toilet, 2 slaapkamers op de begane grond en de trapopgang naar boven. Na de keuken is er nog een tweede hal, praktisch als doorgang naar de bergingen, wasruimte en de grote garages. Deze verbindt de functionele ruimtes op de begane grond en maakt de woning erg verrassend ingedeeld.

Eetkamer en keuken
Vanuit de entree stap je de eetkamer binnen, een gezellige ruimte van ruim vijftien vierkante meter. De lichtinval en de verbinding met de keuken maken dit een fijne plek om samen te komen, of je nu kiest voor een grote eettafel of een knusse eetopstelling.

De keuken zelf is praktisch ingedeeld en biedt veel werkruimte. Vanuit hier kijk je fijn uit naar de dijk en heb je directe toegang tot de hal die leidt naar de bergingen en de woonkamer. De keuken vormt hierdoor het hart van de woning, waar dagelijks leven en werklogistiek vanzelf samenkomen.

Badkamer, toilet en wasruimte
In de zijgang bevinden zich de badkamer met douche en wastafel, de wasruimte en het separate toilet. Alles is gelegen op de begane grond, wat extra gemak biedt. Dankzij deze indeling is het een levensloopbestendige woning te noemen. Een van de bergingen kan worden verbouwd tot eventueel een grotere badkamer.

Berging, werkruimte en doorgang naar loods en garage
Achter de multifunctionele vergaderruimte en hal liggen twee flinke bergingen van respectievelijk bijna 160 vierkante meter. Deze ruimtes zijn ideaal als werkplaats, opslag of hobbyruimte. Vanuit hier loop je door naar een extra berging van ongeveer 14 vierkante meter.

De loods is indrukwekkend groot en biedt eindeloze mogelijkheden. Of je nu een bedrijf aan huis wilt voeren, voertuigen wilt stallen, een atelier of werkplaats zoekt of simpelweg ruimte wilt voor hobby’s: hier kan het allemaal. Het volledig verharde erf rond de opstallen maakt manoeuvreren eenvoudig en geeft het geheel een robuuste, en grote uitstraling.

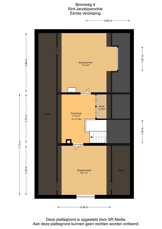
Slaapkamers 
Aan het einde van de leefvleugel bevinden zich twee slaapkamers op de begane grond, elk met fijne afmetingen en een rustige ligging. Dit biedt mogelijkheden voor gelijkvloers wonen, logees, of bijvoorbeeld een kantoor aan huis. Via de trap in de entree kom je op de eerste verdieping. Ook hier is de ruimte royaal opgezet. De overloop van ruim elf  voelt licht en prettig en biedt toegang tot twee slaapkamers. De slaapkamer aan de voorzijde meet circa dertien vierkante meter en de slaapkamer aan de achterzijde ruim zeventien vierkante meter. Beide kamers hebben een karakteristieke uitstraling door de schuine dakvlakken.

 Slaapkamers
De slaapkamer aan de voorzijde meet ca. 13 m²  en de slaapkamer aan de achterzijde ca. 17 m². Beide kamers hebben een karakteristieke uitstraling door de schuine dakvlakken.


Buitenruimte, 4585 m² aan vrijheid
Rondom de woning ligt een enorm erf dat volledig past bij het open karakter van de Bildtse zeedijk. De grote loods, de royale garage en de lengte van het perceel maken het zeer geschikt voor mensen die ruimte zoeken voor bijvoorbeeld paarden, voertuigen, tuinliefhebbers of ondernemers. Het is een plek waar je de hele dag door het gevoel van vrijheid ervaart.

Pluspunten:
• Unieke ligging aan de zeedijk, vlak bij Zwarte Haan
• Vrijstaande woning op 4.585 m² eigen grond
• Grote loods, garages en meerdere bergingen
• 4 slaapkamers, waarvan 2 op de begane grond
• Gelijkvloerse voorzieningen – levensloopbestendig
• Perfect voor ondernemers, hobbyisten of opslag/werkruimte
• Veel vrijheid, privacy en buitenruimte rondom

Boonweg 4 biedt een bijzondere plek om te wonen, een combinatie van historie, ruimte en rust die je zelden ziet. De ligging aan de zeedijk, de grote hoeveelheid bijgebouwen, het ruime woonhuis en de enorme kavel maken dit een buitenkans voor wie op zoek is naar een unieke woonlocatie met mogelijkheden in overvloed. Wil je deze bijzondere plek met eigen ogen ervaren? We leiden je graag rond!

Deze informatie is door ons met de nodige zorgvuldigheid samengesteld, veelal aan de hand van de door verkoper aan ons ter hand gestelde gegevens en tekeningen. Onzerzijds wordt echter geen enkele aansprakelijkheid aanvaard voor enige onvolledigheid, onjuistheid of anderszins, dan wel de gevolgen daarvan. Dit geldt voor onder meer de opgegeven maten, oppervlakten, isolatie en ouderdom van technische installaties.

Kenmerken