Beschrijving

Wonen met ruimte, comfort en energiezuinigheid in een fijne buurt van St. Annaparochie. Welkom aan De Nije Kamers 12: een ruime, goed onderhouden woning in een breed opgezette straat, met een prettige indeling, veel licht en een comfortabele afwerking. Hier woon je rustig, met alle dagelijkse voorzieningen binnen handbereik én met een energiezuinig label A. Een fijne plek waar je zó in kunt. 

De indeling is als volgt:

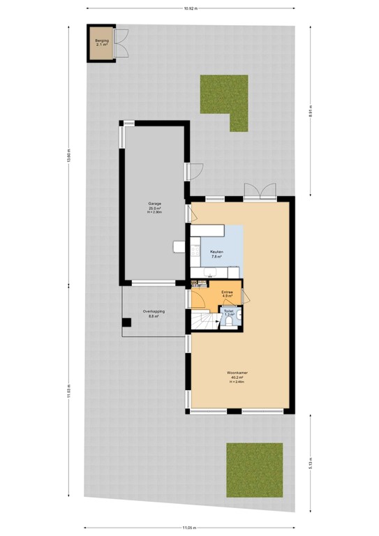
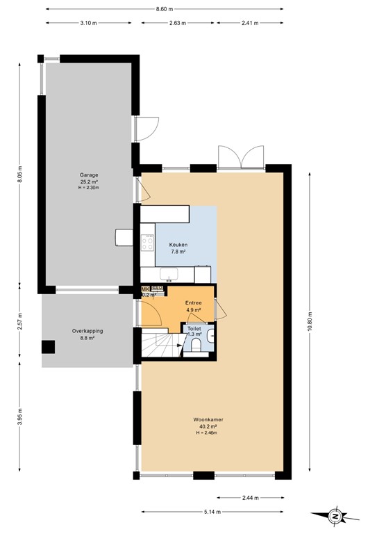
Begane grond
Via de entree kom je in de hal met toilet, meterkast en trapopgang. Vanuit hier loop je door naar de ruime woonkamer van ca. 40 m². Dankzij de grote raampartijen is dit een heerlijk lichte leefruimte met volop mogelijkheden voor een royale zithoek en een grote eettafel.
De keuken staat in open verbinding met de woonkamer en is praktisch ingericht in een hoekopstelling, voorzien van diverse inbouwapparatuur en veel werk- en kastruimte. Zowel in de woonkamer, hal als keuken geniet je van comfortabele vloerverwarming. De openslaande deuren naar het terras zorgen op zomerse dagen voor een heerlijk binnen/buitengevoel, waarbij wonen en tuin naadloos in elkaar overlopen.

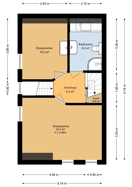
Eerste verdieping
Op de eerste verdieping bevinden zich momenteel twee slaapkamers en de badkamer. De grootste slaapkamer is royaal van formaat en biedt de mogelijkheid om hier eenvoudig twee slaapkamers van te realiseren. De grootste slaapkamer is royaal van formaat, de tweede slaapkamer is ideaal als kinder-, werk- of logeerkamer. De nette badkamer is compleet uitgevoerd met ligbad, douche, wastafel en toilet.

Zolder
De vaste trap brengt je naar de ruime zolderverdieping van ca. 17,6 m² met een prettige hoogte. Deze ruimte is uitstekend geschikt als extra slaapkamer, thuiswerkplek of hobbyruimte. Daarnaast is hier de cv-installatie geplaatst.

Buitenruimte & parkeren
De woning beschikt over een ruime oprit met plek voor meerdere auto’s en een aangebouwde garage. De tuin is netjes aangelegd en biedt meerdere plekken om van de zon te genieten. Daarnaast is er een vrijstaande houten berging, ideaal voor het stallen van tuinmeubilair en tuingereedschap. 

Goed om te weten:
+ Energielabel A
+ Vloerverwarming begane grond
+ Cv-ketel, [Intergas, bj 2021, eigendom]
+ Ruime oprit en eigen achterom
+ Rustige, kindvriendelijke woonwijk
+ Nabij de Waddenzee

Wonen in St. Annaparochie
St. Annaparochie (ca. 5.000 inwoners) is een levendig dorp met een compleet voorzieningenaanbod, waaronder winkels, scholen (tevens voortgezet onderwijs), sportverenigingen en horeca. Daarnaast zijn Leeuwarden en Franeker vlot bereikbaar, net als de uitvalswegen richting de rest van Friesland. Bovendien woon je hier op korte afstand van de Waddendijk, waar je heerlijk kunt wandelen of fietsen en volop geniet van de Friese natuur. 

Benieuwd of dit jouw nieuwe [t]huis kan worden? Neem gerust contact op voor een bezichtiging – je bent van harte welkom!

Deze informatie is door ons met de nodige zorgvuldigheid samengesteld, veelal aan de hand van de door verkoper aan ons ter hand gestelde gegevens en tekeningen. Onzerzijds wordt echter geen enkele aansprakelijkheid aanvaard voor enige onvolledigheid, onjuistheid of anderszins, dan wel de gevolgen daarvan. Dit geldt voor onder meer de opgegeven maten, oppervlakten, isolatie en ouderdom van technische installaties.

Kenmerken