Beschrijving

Aan de Davelaer 12 in Sint Annaparochie staat deze karakteristieke twee-onder-een-kapwoning uit 1934. Met een woonoppervlakte van ca. 85 m², drie slaapkamers en een garage biedt deze woning een uitstekende basis voor wie op zoek is naar een woning met mogelijkheden. De ligging is ideaal: direct tegenover de sportvelden en op korte afstand van voorzieningen in het dorp. De woning heeft een lager energielabel en vraagt om modernisering, wat juist kansen biedt voor handige starters of klussers die hun eigen draai willen geven.

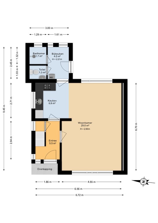
Begane grond
Via de entree kom je in de hal met trapopgang. De woonkamer is opvallend ruim en licht, met volop ruimte voor een zithoek en een eettafel waar je gezellig samenkomt met familie of vrienden. Het mooie balkenplafond geeft de ruimte extra karakter en sfeer. De grote ramen zorgen voor veel daglicht, waardoor de woonkamer nog groter aanvoelt. Dit alles maakt het een echt karakteristieke jaren ’30-woning, met de charme van toen en de mogelijkheden om het geheel te moderniseren naar de woonwensen van nu.

Aansluitend bevindt zich een open keuken in een eenvoudige hoekopstelling, met toegang tot de bijkeuken. Hier vind je ook het toilet en de badkamer met douche en wastafel. Vanuit de keuken is bovendien toegang tot een (droge) kelder, ideaal om keukenspullen en voorraad overzichtelijk op te bergen.

De begane grond biedt diverse mogelijkheden om de indeling naar eigen wens aan te passen. Denk bijvoorbeeld aan het plaatsen van een moderne keuken of het vergroten van de leefruimte door een uitbouw richting de tuin. Zo creëer je eenvoudig een eigentijdse woonomgeving die helemaal aansluit bij jouw wensen.

Eerste verdieping
De eerste verdieping telt drie slaapkamers. Twee kamers zijn vergroot door middel van een dakkapel, waardoor ze extra licht en ruimte bieden. Ook hebben deze 2 slaapkamers een aangesloten wastafel in de kamer. De derde slaapkamer is compact en prima geschikt als kinderkamer, logeerplek of zelfs als een thuiskantoor. Op de overloop is ook extra bergruimte aanwezig.

Zolder
De zolder is bereikbaar via een vlizotrap en biedt ca. 14 m² aan bergruimte. Handig voor het opslaan van spullen die je niet dagelijks nodig hebt.

Tuin en bijgebouwen
De woning beschikt over een kleine voortuin en een diepe achtertuin die volledig omheind is voor veel privacy. Ook kun je de tuin volledig naar eigen wens inrichten. De achtertuin biedt volop mogelijkheden voor het aanleggen van een terras, een speelplek of een groene moestuin. Achter op het perceel staat een vrijstaande garage van ca. 17,8 m², groot genoeg om een auto in te parkeren of te gebruiken als opslag. Helemaal achterin de tuin bevindt zich bovendien nog een kleine berging (ca. 5,4 m²), ideaal voor extra opslag van bijvoorbeeld tuingereedschap of seizoensspullen. Zo combineer je buitenruimte met veel praktische bergruimte.

Pluspunten
• Diepe achtertuin
• Kansen om te verduurzamen en te verbeteren
• Vrijstaande garage
• Extra berging achterin de tuin
• Drie slaapkamers
• Ligging tegenover de sportvelden
• Goede bereikbaarheid richting Leeuwarden en Franeker
• Recent schilderwerk rondom (2024)
• Grotendeels kunststof kozijnen.
• Zonwering
• Dubbel glas en begane grond HR++

Met de sportvelden pal voor de deur, scholen en winkels in de buurt en goede verbindingen richting Leeuwarden en Franeker, woon je hier centraal én dorps tegelijk. Davelaer 12 is een woning met karakter en potentie, klaar om met jouw ideeën en creativiteit omgetoverd te worden tot een eigentijds thuis.

Goed om te weten
Het registergoed wordt verkocht in de staat waarin het zich bevindt, met alle daarbij behorende zichtbare en onzichtbare gebreken (‘as is, where is’). De koper aanvaardt de huidige bouwkundige, technische, juridische, milieukundige en feitelijke toestand volledig. Verkoper geeft hierover geen garanties.

Deze informatie is door ons met de nodige zorgvuldigheid samengesteld, veelal aan de hand van de door verkoper aan ons ter hand gestelde gegevens en tekeningen. Onzerzijds wordt echter geen enkele aansprakelijkheid aanvaard voor enige onvolledigheid, onjuistheid of anderszins, dan wel de gevolgen daarvan. Dit geldt voor onder meer de opgegeven maten, oppervlakten, isolatie en ouderdom van technische installaties.

Kenmerken