Beschrijving
        
Aan De Rombade in Ried staat deze goed onderhouden vrijstaande woning met aangebouwde stenen garage, gelegen op een ruim perceel van maar liefst 601 m². De woning uit 1991 biedt een comfortabel woonoppervlak en is omringd door een fraai aangelegde tuin die veel privacy en rust biedt. Dankzij de ruime opzet, twee slaapkamers en de verzorgde staat van onderhoud is dit een ideale woning voor wie op zoek is naar comfortabel wonen in een rustige en groene omgeving.
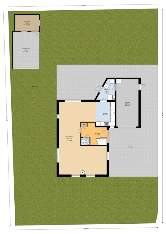
Begane grond
De entree geeft toegang tot de hal met toilet, meterkast en trapopgang. De ruime woonkamer van bijna 50 m² is opvallend licht dankzij de vele ramen rondom, waardoor je hier geniet van een prettig uitzicht over de tuin. Er is voldoende plek voor een grote zithoek én een royale eettafel; de ruimte voelt open en uitnodigend aan.
De keuken ligt aan de achterzijde en is praktisch ingericht. Aangrenzend bevindt zich de bijkeuken, waar plaats is voor witgoed en extra bergruimte. Vanuit hier heb je toegang tot de aangebouwde garage van ca. 20 m² — ideaal voor het stallen van een auto, fietsen of als hobby- en werkruimte.
Eerste verdieping
Op de eerste verdieping bevinden zich twee ruime slaapkamers en een nette badkamer. De grootste slaapkamer (ca. 19 m²) ligt aan de voorzijde van de woning en biedt volop ruimte voor een groot tweepersoonsbed, kastenwand of zelfs een kleine zithoek. De tweede slaapkamer bevindt zich aan de achterzijde en is eveneens goed van formaat – ideaal als logeerkamer, werkkamer of hobbyruimte.
De badkamer is praktisch ingericht en voorzien van een ligbad, douche, wastafel en tweede toilet.
Tuin en buitenruimte
De woning staat op een mooi, breed perceel met een tuin rondom. Aan de voorzijde is ruimte voor het parkeren van de auto op eigen terrein. De achtertuin is verzorgd aangelegd met gras en bestrating, en biedt volop zon én privacy. Achter in de tuin vind je bovendien een vrijstaand tuinhuis met overkapping, een heerlijke plek om beschut buiten te zitten of gezellig te borrelen met vrienden en familie.
Duurzaamheid en onderhoud
De woning beschikt over energielabel B en is goed geïsoleerd, met dubbel glas en spouwmuurisolatie. De woning is degelijk gebouwd en over het algemeen goed onderhouden.
Wel verdient een aantal punten aandacht: de boeiboorden verkeren in mindere staat en dienen op termijn te worden vervangen. Daarnaast is het gaaswerk rondom de schoorsteen deels losgeraakt, waardoor mogelijk de afvoerpijp verstopt is. Ook de afvoer van de douche vertoont een lekkage, wat doorslag geeft naar het plafond van de woonkamer.
Deze onderhoudspunten bieden tegelijkertijd de mogelijkheid om de woning op onderdelen te verbeteren en geheel naar eigen wens te moderniseren. Dankzij de solide basis, het goede energielabel en de rustige ligging vormt dit een uitstekende kans voor wie zoekt naar een comfortabel en toekomstgericht huis met potentie.
Pluspunten
• Vrijstaande woning met aangebouwde garage
• Perceel 601 m²
• Tuin rondom met tuinhuis en overkapping
• Twee ruime slaapkamers
• Parkeergelegenheid op eigen erf
• Rustige ligging in een gemoedelijk dorp
• Energielabel B
Over Ried
Ried is een rustig en vriendelijk dorp in de gemeente Waadhoeke, op korte afstand van Franeker en binnen twintig minuten rijden van Leeuwarden. In de omgeving kun je heerlijk wandelen en fietsen door het open Friese landschap of langs de Waddenzee. Het dorp heeft een actief verenigingsleven en een sterke gemeenschapsband — ideaal voor wie landelijk wil wonen, maar toch graag binnen handbereik van de stad blijft.
Deze informatie is door ons met de nodige zorgvuldigheid samengesteld, veelal aan de hand van de door verkoper aan ons ter hand gestelde gegevens en tekeningen. Onzerzijds wordt echter geen enkele aansprakelijkheid aanvaard voor enige onvolledigheid, onjuistheid of anderszins, dan wel de gevolgen daarvan. Dit geldt voor onder meer de opgegeven maten, oppervlakten, isolatie en ouderdom van technische installaties.
         
     
        Plattegronden
            
                
                
                    De Rombade 2 - Situatie - 2D.jpg
                
             
            
                
                
                    De Rombade 2 - Situatie - 3D.jpg
                
             
            
                
                
                    De Rombade 2 - Begane grond - 2D.jpg
                
             
            
                
                
                    De Rombade 2 - Begane grond - 3D.jpg
                
             
            
                
                
                    De Rombade 2 - 1e verdieping - 2D.jpg
                
             
            
                
                
                    De Rombade 2 - 1e verdieping - 3D.jpg
                
             
            
                
                
                    De Rombade 2 - Vliering - 2D.jpg
                
             
            
                
                
                    De Rombade 2 - Vliering - 3D.jpg
                
             
            
                
                
                    De Rombade 2 - Berging - 2D.jpg
                
             
            
                
                
                    De Rombade 2 - Berging - 3D.jpg