Beschrijving

Beschrijving
Aan De Lysterfanger 7 in Oudemirdum staat deze goed onderhouden hoekwoning met verrassend veel ruimte en een fijne ligging. Met een woonoppervlakte van ca. 108 m², vijf slaapkamers, een vrijstaande stenen garage en een zonnige tuin met overkapping, is dit een ideale gezinswoning. Dankzij het energielabel B, 10 zonnepanelen en de cv-ketel uit 2024 is de woning bovendien comfortabel en energiezuinig.

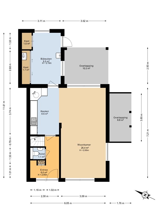
Begane grond
Via de entree kom je in de hal met toilet en trapopgang. De woonkamer is heerlijk licht dankzij de grote raampartijen aan de voorzijde en biedt voldoende ruimte voor zowel een zit- als eetgedeelte. De open indeling zorgt voor een prettige verbinding met de keuken, die is voorzien van inbouwapparatuur en vanuit de zithoek heb je het uitzicht op de tuin.

Aangrenzend bevindt zich de bijkeuken, een praktische ruimte voor eventueel een witgoedaansluiting en extra bergruimte. Vanuit hier stap je zo onder de overkapping in de achtertuin – ideaal voor lange zomeravonden of beschut genieten van het buitenleven.

Eerste verdieping
De eerste verdieping telt drie slaapkamers, variërend in grootte van ca. 6 tot 13 m². Alle kamers hebben een prettige lichtinval en zijn geschikt als slaap-, werk- of hobbykamer. De badkamer is functioneel ingericht met een ligbad, douche en wastafel, en biedt daarmee alles wat je dagelijks nodig hebt. De ruimte is keurig onderhouden maar biedt tegelijkertijd mooie kansen voor modernisering. Met een eigentijdse inrichting en nieuwe afwerking kun je hier eenvoudig een frisse, moderne badkamer creëren die volledig aansluit bij jouw woonstijl en comfortwensen.

Tweede verdieping
Via een vaste trap bereik je de tweede verdieping, die recent is verbouwd tot een volwaardige woonlaag. Hier zijn twee nette slaapkamers gerealiseerd, beide voorzien van dakramen waardoor er veel natuurlijk licht binnenvalt. De ruimtes zijn keurig afgewerkt en praktisch ingericht, waardoor ze direct te gebruiken zijn als slaap-, werk- of logeerkamer. Dankzij de efficiënte indeling is dit echt een waardevolle aanvulling op de woonruimte van het huis.

Tuin en garage
De woning beschikt over een nette voortuin en een achtertuin met veel privacy. De tuin is voorzien van bestrating, groen en een ruime overkapping, waar je beschut kunt zitten en het hele jaar door van het buitenleven kunt genieten. Achter op het perceel staat een vrijstaande stenen garage, ideaal voor het stallen van een auto, fietsen of als hobbyruimte. 

Duurzaamheid en onderhoud
De woning is goed onderhouden en toekomstbestendig. Met 10 zonnepanelen en een cv-ketel (2024) in eigendom profiteer je van lage energiekosten. Daarnaast is de woning grotendeels voorzien van HR++ beglazing en goed geïsoleerd, wat bijdraagt aan een aangenaam binnenklimaat en comfortabel woongevoel. In de woonkamer, keuken, wc en badkamer is bovendien vloerverwarming aanwezig, waardoor je geniet van een gelijkmatige warmteverdeling en extra wooncomfort. Met het huidige energielabel B is deze woning helemaal klaar voor de toekomst.

Pluspunten
• Energielabel B
• 10 zonnepanelen (eigendom)
• Cv-ketel uit 2024
• Vrijstaande stenen garage
• Overkapping in de achtertuin
• Vijf slaapkamers
• Grotendeels HR++ beglazing
• Rustige ligging in Oudemirdum
• Vloerverwarming

Over Oudemirdum
Oudemirdum is een gezellig brinkdorp in het hart van Gaasterland, omringd door bossen, glooiende landerijen en het IJsselmeer op fietsafstand. Het dorp heeft een supermarkt, basisschool, horecagelegenheden en een actief verenigingsleven. Binnen enkele minuten wandel of fiets je door de prachtige natuur, zoals de Rijsterbos of de kliffen van Mirns. Grotere plaatsen als Balk, Lemmer en Sneek zijn snel bereikbaar, wat Oudemirdum de perfecte combinatie maakt van rust, natuur en bereikbaarheid.

Deze informatie is door ons met de nodige zorgvuldigheid samengesteld, veelal aan de hand van de door verkoper aan ons ter hand gestelde gegevens en tekeningen. Onzerzijds wordt echter geen enkele aansprakelijkheid aanvaard voor enige onvolledigheid, onjuistheid of anderszins, dan wel de gevolgen daarvan. Dit geldt voor onder meer de opgegeven maten, oppervlakten, isolatie en ouderdom van technische installaties.

Kenmerken