Beschrijving

Op zoek naar een fijne gezinswoning met garage, diepe tuin én een rustige ligging in het dorp? Dan is Skoalstrjitte 18 in Minnertsga echt iets voor jou! Deze twee-onder-één-kap woning is keurig bewoond, licht, heeft een praktische indeling. Een fijne basis voor wie graag zijn eigen woonwensen wil realiseren. Pluspunt: de diepe achtertuin met vrijstaande garage, berging én achterom!

De indeling is als volgt:

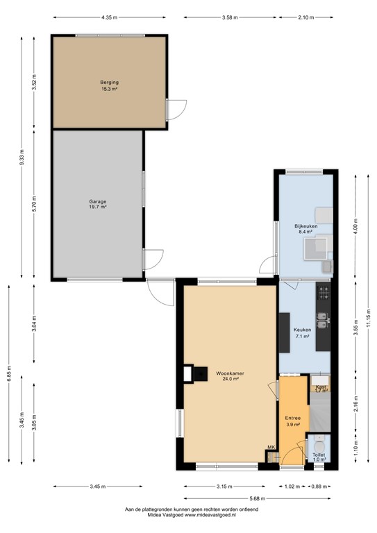
Begane grond
Via de voordeur kom je binnen in de entree met trapopgang, meterkast, trapkast en toilet. Vanuit de hal loop je door naar de woonkamer – een lichte doorzonkamer met zicht op zowel de straat als de achtertuin. Hier kun je makkelijk een gezellige zit- en eethoek creëren.
De keuken bevindt zich aan de achterzijde en is eenvoudig ingericht, maar netjes onderhouden. Vanuit de keuken kom je in de praktische bijkeuken met achterdeur naar de tuin.

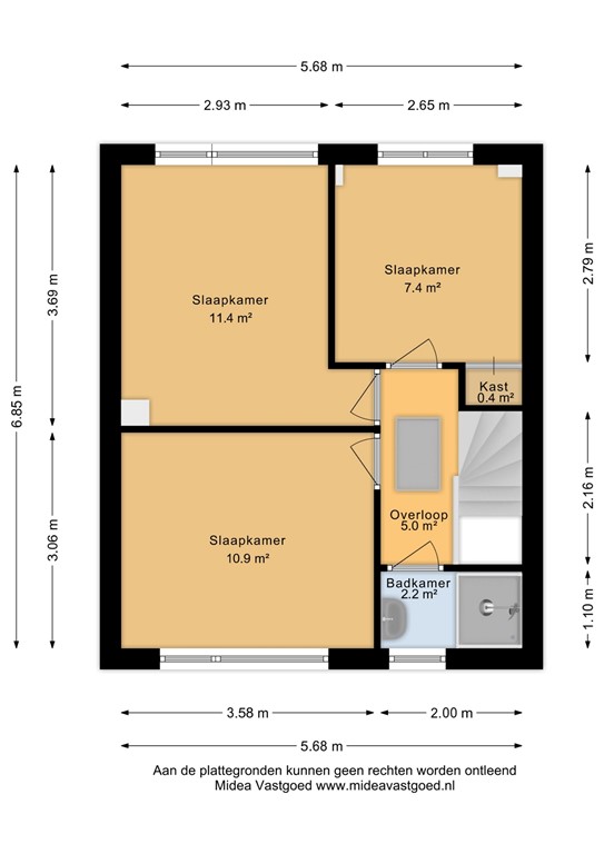
Verdieping
Op de verdieping vind je een overloop en drie slaapkamers van mooi formaat (ca. 11m², 11m² en 7m²), allemaal met prettig lichtinval. Verder is er een compacte badkamer met douche en wastafel.

Vliering
Via een vlizotrap bereik je de vliering. Ideaal als extra opslagruimte voor bijvoorbeeld seizoensspullen, koffers en kerstdozen.

Buitenruimte
De achtertuin is ruim, groen en ligt gunstig op het zuidwesten - ideaal voor zonliefhebbers. De tuin is omheind en bestaat nu grotendeels uit gazon met aan de woningzijde een terrasgedeelte. Hierdoor heb je zowel ruimte om buiten te zitten als om te genieten van een groene omgeving. Dankzij de lengte van de tuin zijn er volop mogelijkheden voor bijvoorbeeld een eigen moestuin, speelplek voor kinderen, plantenvakken of een sfeervolle overkapping.

Verder bevindt zich er een vrijstaande garage en aangebouwde houten berging - super praktisch voor fietsen, klusspullen of hobby’s. Er is een achterom aanwezig en aan de voorzijde een royale oprit met plek voor meerdere auto’s.

Pluspunten van de woning:
• Energielabel: D
• Drie slaapkamers
• Diepe achtertuin op het zuidwesten
• Rustige ligging in het dorp
• Goed onderhouden basis

Locatie
Minnertsga is een actief en gemoedelijk dorp met voorzieningen als basisschool, supermarkt, sportaccommodaties en goede uitvalsmogelijkheden richting Franeker, Leeuwarden en de kust. Een fijne plek om te wonen met veel rust en ruimte!

Wil je graag een woning waar je je eigen smaak in kunt leggen, mét garage, ruime tuin en een rustige ligging? Dan ben je hier aan het goede adres. Bel ons gerust voor een bezichtiging! 

Deze informatie is door ons met de nodige zorgvuldigheid samengesteld, veelal aan de hand van de door verkoper aan ons ter hand gestelde gegevens en tekeningen. Onzerzijds wordt echter geen enkele aansprakelijkheid aanvaard voor enige onvolledigheid, onjuistheid of anderszins, dan wel de gevolgen daarvan. Dit geldt voor onder meer de opgegeven maten, oppervlakten, isolatie en ouderdom van technische installaties.

Kenmerken