Beschrijving

Nieuw in de verkoop | 8 rug-aan-rug nieuwbouwwoningen | Boekerij in Minnertsga!

Ben jij op zoek naar een betaalbare nieuwbouwwoning in het sfeervolle dorp Minnertsga? Dan is dit jouw kans!

Deze twee woongebouwen worden de blikvangers van de buurt. In elk van de blokken vormen vier woningen samen één schuurachtig geheel. Deze blokken vormen door hun volume en plaatsing een uniek geheel dat in materiaal en detaillering aansluit bij de omgeving. Door de onderlinge verdraaiing, de tuinen en de aanwezigheid van openbaar groen rondom ontstaat het karakter van een erf.

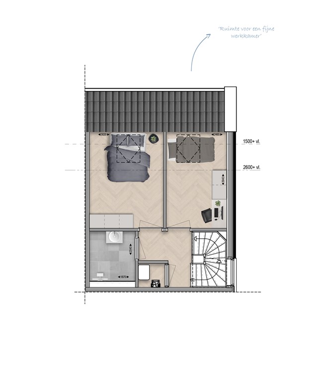
Deze woningen zijn royaal opgezet en worden uitgevoerd met een ruime woonkamer en keuken, drie slaapkamers, badkamer, een ruime buitenberging en een tuin rondom.Het oranjerode metselwerk met speciale detaillering verwijst naar de woningen in de omgeving. De antraciete daken en gevelbekleding geven de woningen een hedendaagse uitstraling.

Het unieke concept van deze kwadrantwoningen zorgt ervoor dat elke woning in dit plan een hoekwoning is. Dat betekend dat je in dit project altijd een hoekkavel hebt met een ruime tuin met groene haag rondom. Doordat er bij de woningen ook openbaar groen wordt aangelegd kan je hier heerlijk genieten van het buiten zijn. 

Elke woning krijgt licht en uitzicht rondom en wordt voorzien van een ruime buitenberging. Parkeren kan je vlakbij en met de moderne installatie met zonnepanelen woon je hier heel compleet en bijzonder comfortabel.

Kenmerken