Beschrijving

Ben je op zoek naar een woning die je helemaal naar eigen smaak kunt moderniseren? Dan is deze hoekwoning aan de Jacob Binckesstraat 31 in Leeuwarden een mooie kans. De woning beschikt over een lichte woonkamer, drie slaapkamers, een praktische bijkeuken en een zonnige achtertuin met berging. Met wat aandacht en modernisering maak je hier weer een fijne plek van om thuis te komen. De woning ligt in een groene en centraal gelegen woonomgeving in Leeuwarden. De buurt kenmerkt zich door een rustige woonstraat, en de nabijheid van het Dr. Zamenhofpark waar je prettig kunt wandelen of ontspannen. Tegelijkertijd woon je hier op korte afstand van de binnenstad, winkels, scholen en sportvoorzieningen. Dankzij de goede verbindingen ben je bovendien snel onderweg richting andere delen van de stad en de uitvalswegen.

Om je alvast een idee te geven van de mogelijkheden hebben we bij de presentatie artist impressions toegevoegd. Deze beelden laten zien hoe de woning er na een modernisering uit zou kunnen zien en helpen je om de potentie van de ruimtes beter te visualiseren.

De indeling is als volgt:

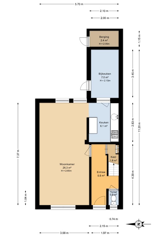
Begane grond
Via de voortuin kom je binnen in de entree met meterkast, trapopgang en toiletruimte. Vanuit de hal loop je door naar de woonkamer. De woonkamer is een lichte ruimte met grote ramen aan de achterzijde en een oppervlakte van circa 26 m². Hier is voldoende plek voor zowel een zit- als eetgedeelte. Aansluitend bevindt zich de keuken. De keuken is opgesteld in een praktische opstelling met aan beide zijden werk- en kastruimte. Vanuit de keuken is er toegang tot de bijkeuken. De bijkeuken biedt extra bergruimte en een achterdeur naar de tuin. Aansluitend bevindt zich nog een separate berging/overkapping.

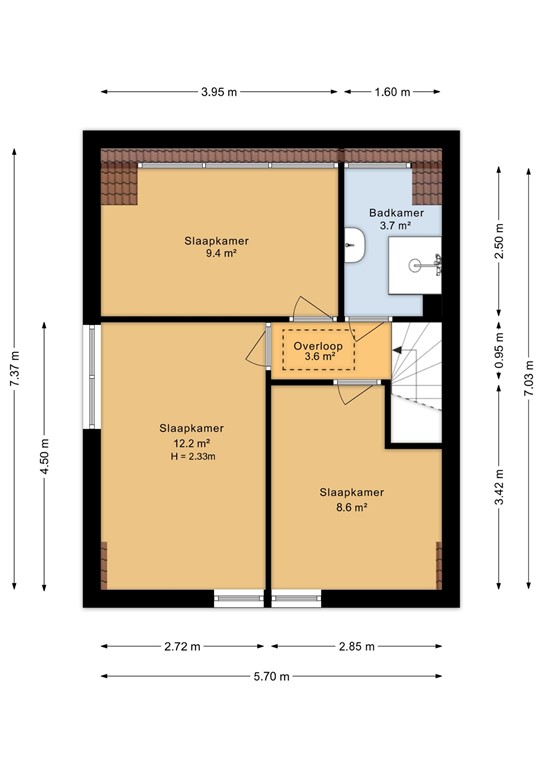
Eerste verdieping
Op de eerste verdieping kom je op de overloop met toegang tot drie slaapkamers en de badkamer. De badkamer is voorzien van een douche en wastafel.

Vliering
Via een vlizotrap bereik je de vliering. Deze ruimte is ideaal voor extra opslag.

Tuin
De achtertuin is onderhoudsvriendelijk ingericht met bestrating en beschikt over een kleine houten berging/overkapping. Een praktische plek voor fietsen, tuinspullen of opslag.

Goed om te weten:
+ energielabel F
+ ideale starterswoning
+ deels kunststof kozijnen
+ gelegen nabij een klein speelpleintje 
+ 'As is where is'-clausule is van toepassing
+ per direct beschikbaar

Kortom; een woning met een praktische indeling, drie slaapkamers en een fijne tuin. Met wat modernisering maak je hier weer een comfortabel en eigentijds thuis.

Deze informatie is door ons met de nodige zorgvuldigheid samengesteld, veelal aan de hand van de door verkoper aan ons ter hand gestelde gegevens en tekeningen. Onzerzijds wordt echter geen enkele aansprakelijkheid aanvaard voor enige onvolledigheid, onjuistheid of anderszins, dan wel de gevolgen daarvan. Dit geldt voor onder meer de opgegeven maten, oppervlakten, isolatie en ouderdom van technische installaties.

Kenmerken