| Prijs | € 775.000,- k.k. |
| Type object | Woonhuis, eengezinswoning, vrijstaande woning |
| Perceeloppervlakte | 546 m² |
| Woonoppervlakte | 151,99 m² |
| Aanvaarding | In overleg |
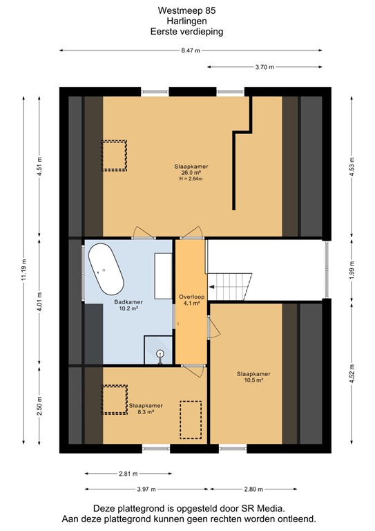
Wonen in stijl, omringd door luxe en comfort – aan open vaarwater in een ruim opgezette waterrijke nieuwbouwwijk in Harlingen-Zuid. Stap binnen in deze vrijstaande, eigentijdse droomwoning met zicht op de Bolswardervaart en nabij Natura 2000 vogelgebied 'It Hegewiersterfjild'. Tot in de puntjes afgewerkt en volledig instapklaar, biedt deze woning alles wat je zoekt: een sfeervolle open leefruimte, een karaktervolle woonkeuken en een prachtig aangelegde, privacyvolle tuin. Hier geniet je van ruimte, rust en luxe – elke dag opnieuw. Aan de Westmeep 85 in Harlingen staat deze zeer luxe vrijstaande woning uit 2022, volledig duurzaam gebouwd volgens het nieuwste bouwbesluit. Met een woonoppervlakte van ca. 152 m², een perceel van 546 m² en een indrukwekkende mix van stijl, comfort en duurzaamheid is dit een huis van het hoogste niveau! Alles is in de afgelopen drie jaar nieuw, modern en zorgvuldig afgewerkt. Dankzij het energielabel A+++, een aardwarmtepomp, geïntegreerde domotica, vloerverwarming en 16 zonnepanelen woon je hier niet alleen comfortabel, maar ook uiterst energiezuinig. Begane grond Bij binnenkomst word je direct verrast door de indrukwekkende hal met vide en een royale raampartij die zorgt voor een zee aan licht. De moderne open trap met strak stalen frame en houten treden vormt een echte eyecatcher. Het groenaccent met een prachtige verticale plantenwand geeft de hal een levendige en natuurlijke uitstraling. De houten wandafwerking, persoonlijke fotogalerij en stijlvolle verlichting maken dit tot een warme en unieke entree. Hier voel je meteen dat je een bijzonder huis binnenstapt! In de hal bevinden zich een toilet, meterkast en garderobe. Rechts aan de zijkant bevindt zich een praktische bijkeuken, ideaal voor extra opslag en plek voor de witgoedopstelling. Vanuit de hal geeft de eigentijdse stalen deur toegang tot de woonkamer. Hoewel de ruimtes hier naadloos in elkaar overlopen, heeft elk deel van de leefruimte een eigen karakter. Woonkamer De indrukwekkende living straalt warmte en karakter uit dankzij een robuuste houten balkenplafond met stijlvolle inbouwspots die voor een prettige verlichting zorgen. Het plafond is strak en licht afgewerkt, waardoor de ruimte een mooie balans heeft tussen modern en rustiek. De wanden zijn deels voorzien van een natuursteenlook en PVC bekleding, wat een speelse en natuurlijke uitstraling geeft. Met de ruime indeling is er volop plek voor een knusse zithoek of een plek om te lezen of tv te kijken. Eetgedeelte Aansluitend bevindt zich het eetgedeelte, waar ruimte is voor een royale eetopstelling. Dankzij de grote ramen met sierlijke raambekleding geniet je hier van veel natuurlijk licht. De open verbinding met de keuken zorgt voor een gezellige sfeer en maakt dit een ideale plek om uitgebreid te tafelen of gasten te ontvangen. De luxe open keuken is het hart van de woning en is uitgevoerd met een stijlvol kookeiland, hoogwaardige inbouwapparatuur en veel opbergruimte. Het geheel vormt een eigentijdse leefruimte waar koken, gezelligheid en modern design samenkomen. Via de openslaande tuindeuren bereik je eenvoudig de achtertuin, waardoor binnen en buiten op een natuurlijke manier met elkaar verbonden zijn. Eerste verdieping Op de eerste verdieping bevinden zich drie ruime slaapkamers, waaronder een indrukwekkende master bedroom van maar liefst ca. 26 m². Deze is stijlvol afgewerkt met moderne wandbekleding in rustige tinten en een strak licht plafond. Dankzij de twee dakramen valt er veel daglicht binnen, wat de kamer een frisse en uitnodigende sfeer geeft. Er is volop ruimte voor een groot tweepersoonsbed en extra meubels, zoals een dressoir of een zitje. Vanuit de slaapkamer is direct toegang tot de luxe badkamer. Een absolute luxe is de aangrenzende inloopkast. Deze praktische ruimte is volledig ingericht met kasten en open schappen, waardoor er meer dan voldoende opbergmogelijkheden zijn voor kleding, schoenen en accessoires. Hier heb je alles netjes binnen handbereik. De andere kamers (ca. 8 en 10 m²) zijn ideaal als slaapkamer, gastenkamer of thuiswerkkantoor. Via een vlizotrap is de vliering te bereiken die als bergzolder gebruikt kan worden voor de niet-alledaagse spullen. Badkamer De luxe badkamer combineert moderne elegantie met stoere materialen. Direct in het oog springt de fraaie massieve houten schuifdeur, die perfect past bij de stijl van de woning. De ruimte is voorzien van een stijlvol vrijstaand ligbad, uitgevoerd in matzwart met een koperkleurige staande kraan, ideaal voor een ontspannen avond. Het dubbele wastafelmeubel met natuurstenen waskommen en bijpassende koperkleurige kranen zorgt niet alleen voor luxe, maar ook voor praktisch gemak. Daarnaast vind je hier een toilet en een ruime inloopdouche met regendouche, glazen deur en donkere marmerlook wandpanelen die de ruimte een chique uitstraling geven. Tuin De fraaie aangelegde tuin rondom de woning is geheel af en biedt volop privacy. Een bijzonder pluspunt is de ligging aan open vaarwater (Bolswardervaart), met een eigen luxe hardhouten steiger over de gehele breedte van het perceel wat garant staat voor watersport, vissen of gewoon genieten van de rust. Daarnaast is er een vrijstaande houten berging met overkapping, praktisch voor extra opslagruimte én een fijne plek waardoor je ook bij minder mooi weer kunt genieten van het buitenleven, ongeacht het seizoen. De voortuin biedt parkeergelegenheid op eigen terrein, alsmede een oplaadpunt voor elektrische voertuigen. Pluspunten van de woning: • Volledig geïsoleerd • 16 zonnepanelen • Aardwarmtepomp met vloerverwarming door de hele woning • Luxe, moderne keuken met hoogwaardige inbouwapparatuur • Aan doorgaand vaarwater in luxe villawijk • Energielabel A+++ • Geïntegreerde domotica aanwezig (Philips Hue) • Laadpaal voor elektrische auto aanwezig (in overleg) • Nabij scholen, sportvoorzieningen, winkels en openbaar vervoer Goed om te weten: Verkopers gaan emigreren en zijn bereid om de de woning met volledige inboedel te verkopen. De leeftijd van de inboedel varieert van 5 maanden tot 3 jaar. Met zijn moderne architectuur, duurzame installaties en hoogwaardige afwerking is Westmeep 85 een woning die luxe en comfortabel wonen combineert. Binnen enkele minuten bereik je het historische centrum van Harlingen met zijn gezellige terrassen, winkels en restaurants. Ook de jachthavens en de veerboten naar de Waddeneilanden liggen dichtbij – ideaal voor watersportliefhebbers of een dagje uitwaaien op Terschelling of Vlieland. Dankzij de gunstige ligging zijn bovendien de uitvalswegen richting de Randstad snel bereikbaar (Amsterdam is maar een uurtje rijden). Deze informatie is door ons met de nodige zorgvuldigheid samengesteld, veelal aan de hand van de door verkoper aan ons ter hand gestelde gegevens en tekeningen. Onzerzijds wordt echter geen enkele aansprakelijkheid aanvaard voor enige onvolledigheid, onjuistheid of anderszins, dan wel de gevolgen daarvan. Dit geldt voor onder meer de opgegeven maten, oppervlakten, isolatie en ouderdom van technische installaties.
| Referentienummer | 647 |
| Vraagprijs | € 775.000,- k.k. |
| Inrichting | Optioneel |
| Aanvaarding | In overleg |
| Aangeboden sinds | Woensdag 24 september 2025 |
| Laatste wijziging | Dinsdag 25 november 2025 |
| Type object | Woonhuis, eengezinswoning, vrijstaande woning |
| Soort bouw | Bestaande bouw |
| Bouwperiode | 2022 |
| Dakbedekking | Dakpannen |
| Type dak | Zadeldak |
| Isolatievormen | Dakisolatie Dubbel glas Muurisolatie Vloerisolatie Volledig geïsoleerd |
| Perceeloppervlakte | 546 m² |
| Woonoppervlakte | 151,99 m² |
| Inhoud | 646 m³ |
| Oppervlakte overige inpandige ruimten | 4,83 m² |
| Oppervlakte externe bergruimte | 9,52 m² |
| Aantal bouwlagen | 3 |
| Aantal kamers | 4 (waarvan 3 slaapkamers) |
| Aantal badkamers | 1 (en 1 apart toilet) |
| Ligging | Aan rustige weg Aan vaarwater Beschutte ligging In woonwijk |
| Type | Tuin rondom |
| Hoofdtuin | Ja |
| Oriëntering | Noorden |
| Heeft een achterom | Ja |
| Staat | Prachtig aangelegd |
| Energielabel | A+++ |
| Aantal parkeerplaatsen | 2 |
| Warm water | Aardwarmte |
| Verwarmingssysteem | Aardwarmte Elektrische verwarming Vloerverwarming Warmtepomp |
| Ventilatie methode | Mechanische ventilatie |
| Keukenvoorzieningen | Inbouwapparatuur Kookeiland |
| Badkamervoorzieningen | Dubbele wastafel Ligbad Toilet Wastafelmeubel |
| Glasvezelaansluiting aanwezig | Ja |
| Tuin aanwezig | Ja |
| Heeft domotica | Ja |
| Heeft schuur/berging | Ja |
| Heeft een dakraam | Ja |
| Heeft zonwering | Ja |
| Heeft zonnepanelen | Ja |
| Heeft ventilatie | Ja |
| Kadastrale aanduiding | Harlingen E 785 |
| Perceeloppervlakte | 546 m² |
| Omvang | Geheel perceel |
| Eigendomsituatie | Eigen grond |